东丽外环商圈民航宿舍1室1厅
-
85万
总价
-
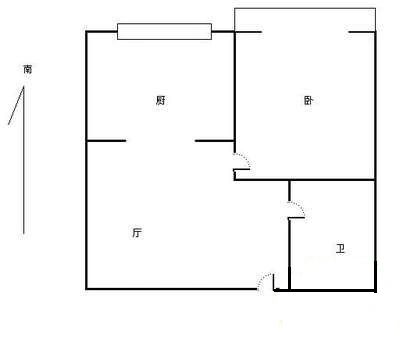
1室1厅1卫
户型
-
40.8㎡
建筑面积
买房加房产交流群,省钱不踩雷
3000+人正在热聊
加入群聊
-
单价
20833元/平米
- 挂牌价格解析
-
楼层
中楼层/6层
- 咨询楼层
-
套内
暂无数据
- 咨询套内使用面积
-
楼型
板楼
-
朝向
南
-
装修
简装
-
年代
2000
-
发布
2025-08-06
-
地铁
距4号线民航大学站约220米
-
咨询总首付
首付约21.5万
首付税费及佣金情况 -
深度测评
小区民航小区(东丽-新立镇)
-
更多
楼户比、楼层高度、交易历史、抵押信息
周边配套
地址:驯海路,民航大学旁
交通综合评分
查看全部6.7
“较好”
超过天津48.1%的小区
-
地铁公交
10.0
-
城际交通
9.0
本月均价 8636元/m²
环比上月 下跌 4.15%
同比去年 下跌 25.26%
猜你喜欢
同小区其它房源
户型齐全,主打户型方正,明厨,主卧朝南二居
民航小区户型主要有56平-89平的户型方正,明厨,主卧朝南的二居 、41平-51平的户型方正,明厨,主卧朝南的一居 、127平-138平的户型方正,双阳台,双卧朝南的三居 。
*获取完整户型报告,同时会有免费语音讲解服务
-
10618元/㎡
本月挂牌均价
-
1.32%
环比上月
买房加房产交流群,省钱不踩雷
3000+人正在热聊
加入群聊
免责声明:房源信息由网站用户提供,其真实性、合法性由信息提供者负责,最终以政府部门登记备案为准。本网站不声明或保证内容之正确性和可靠性,购买该房屋时,请谨慎核查。入学情况仅凭历史经验总结,在此不承诺升学事宜。请您在签订合同之前,切勿支付任何形式的费用,以免上当受骗。



