新星里精装两居室拎包入住满五年户型方正
-
80万
总价
-
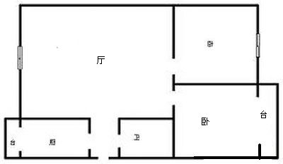
2室1厅1卫
户型
-
56㎡
建筑面积
买房加房产交流群,省钱不踩雷
3000+人正在热聊
加入群聊
-
单价
14286元/平米
- 挂牌价格解析
-
楼层
低楼层/4层
- 咨询楼层
-
套内
暂无数据
- 咨询套内使用面积
-
楼型
板楼
-
朝向
南北
-
装修
简装
-
发布
2021-01-22
-
咨询总首付
首付约21.5万
首付税费及佣金情况 -
深度测评
小区新星里(滨海新区-新城镇)
-
更多
楼户比、楼层高度、交易历史、抵押信息
周边配套
地址:大梁子街金光路与振教路交口
交通综合评分
查看全部5.3
“一般”
超过天津17.1%的小区
-
地铁公交
5.0
-
驾车出行
7.0
-
城际交通
4.0
本月均价 8383元/m²
环比上月 下跌 1.44%
同比去年 上涨 3.65%
猜你喜欢
同小区其它房源
-
7272元/㎡
本月挂牌均价
-
0.76%
环比上月
买房加房产交流群,省钱不踩雷
3000+人正在热聊
加入群聊
免责声明:房源信息由网站用户提供,其真实性、合法性由信息提供者负责,最终以政府部门登记备案为准。本网站不声明或保证内容之正确性和可靠性,购买该房屋时,请谨慎核查。入学情况仅凭历史经验总结,在此不承诺升学事宜。请您在签订合同之前,切勿支付任何形式的费用,以免上当受骗。



