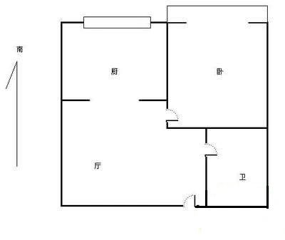
红桥区西沽街流霞东里1室1厅
-
120万
总价
-
1室1厅1卫
户型
-
65.88㎡
建筑面积
买房加房产交流群,省钱不踩雷
3000+人正在热聊
加入群聊
-
单价
18215元/平米
- 挂牌价格解析
-
楼层
高楼层/7层
- 咨询楼层
-
套内
暂无数据
- 咨询套内使用面积
-
楼型
板楼
-
朝向
南北
-
装修
简装
-
年代
1997
-
发布
2022-12-28
-
地铁
距6号线天泰路站约571米
-
咨询总首付
首付约31.7万
首付税费及佣金情况 -
深度测评
小区流霞东里(红桥-西沽)
-
更多
楼户比、楼层高度、交易历史、抵押信息
周边配套
地址:红桥区北运河西路与新红路交口
交通综合评分
查看全部7.6
“较好”
超过天津51.9%的小区
-
地铁公交
10.0
-
驾车出行
7.0
-
城际交通
5.0
本月均价 12419元/m²
环比上月 下跌 0.53%
同比去年 下跌 1.45%
猜你喜欢
同小区其它房源
户型齐全,主打户型方正,客厅朝南,双阳台,主卧朝南二居
流霞东里户型主要有73平-104平的户型方正,客厅朝南,双阳台,主卧朝南的二居 、54平-95平的户型方正的一居 。
*获取完整户型报告,同时会有免费语音讲解服务
-
17864元/㎡
本月挂牌均价
-
0.18%
环比上月
买房加房产交流群,省钱不踩雷
3000+人正在热聊
加入群聊
免责声明:房源信息由网站用户提供,其真实性、合法性由信息提供者负责,最终以政府部门登记备案为准。本网站不声明或保证内容之正确性和可靠性,购买该房屋时,请谨慎核查。入学情况仅凭历史经验总结,在此不承诺升学事宜。请您在签订合同之前,切勿支付任何形式的费用,以免上当受骗。



