装修很好,户型方正厅出阳台房子实用大,看房方便,业主诚意卖
-
680万
总价
-
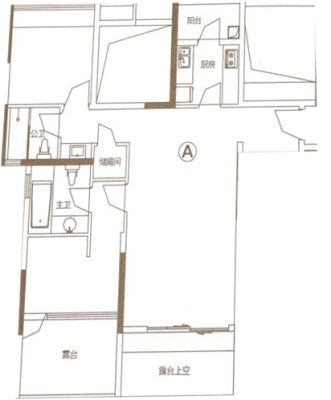
4室2厅2卫
户型
-
104.75㎡
建筑面积
买房加房产交流群,省钱不踩雷
3000+人正在热聊
-
单价
66826元/平米
- 挂牌价格解析
-
楼层
低楼层/18层
- 咨询楼层
-
套内
暂无数据
- 咨询套内使用面积
-
朝向
通南北
-
装修
精装
-
年代
2010
-
发布
1900-01-01
-
地铁
距6号线上芬站约787米
-
咨询总首付
首付约444万
首付税费及佣金情况 -
深度测评
小区金地上塘道花园(龙华区-龙华)
-
更多
楼户比、楼层高度、交易历史、抵押信息
房源描述(1)
-
核心卖点问经纪人
核心: 高实用精装修 四房两卫 小区中间位置 前后看花园 位置安静 满五年 诚心卖! 小区介绍: 金地上塘道花园以板楼设计,外立面用现代主义的理性方式,采用重新追寻技术美与人情味的和谐统一以简约、洗练、纯粹的纯净主义风格。社区实现人车分流,良好的社区服务及配套设施包括购物、体育健身、儿童游戏、物业管理、医疗、文化站、老人活动室 周边配套: 购物有沃尔玛和九方(现天虹),红山6979,迪卡侬,壹方城。银行有招商、建设、农业、中信等多家银行;小区7栋楼下有社康,100米有仁合医院,2公里以内大型公共配套:演艺馆/展览馆/美术馆/图书馆/体育馆/新华医院(三甲)。 交通出行: 龙华4号线上塘站和6号线上芬站都在1公里范围内,福田口岸中间可接驳5号线、9号线、2号线、1号线、7号线; 小区门前50米处还有多条公交车线路通过; 开车到关内可走梅龙大道、民塘路、新区大道、福龙路、南坪快速等,福田、南山、罗湖,交通四通八..
-
业主心态问经纪人
房东置换,诚心出售,可以再谈,欢迎看房,随时恭候。
-
小区配套问经纪人
小区地理位置佳,绿化环境优越整洁,居民素质高,物业管理完善,适宜居住
-
服务介绍问经纪人
本人自2013年起,一直从事房地产行业;涉及新房/二手住宅、公寓、商铺和写字楼买卖及租赁等;通熟全深圳新房及二手房业务,并持有《全国经纪人证书》,拥有较强的专业和服务能力,让您买卖房产更省心!
-
税费分析房贷计算
关于本房的税费信息情况,请电话联系我,我将详细的为您讲解!
-
户型解读问经纪人
房屋拥有相对宽松的尺寸,布局通透,动静分离,设计豪华
周边配套
交通综合评分
查看全部超过深圳60.5%的小区
-
地铁公交
10.0
-
驾车出行
10.0
本月均价 60530元/m²
环比上月 下跌 0.71%
同比去年 下跌 4.32%
猜你喜欢
同小区其它房源
户型齐全,主打明卫三居
金地上塘道花园户型主要有66平-89平的明卫的三居 、37平-45平的明卫,客厅朝南,双阳台的一居 、44平-78平的户型方正,明卫,客厅朝南,双阳台的二居 。
*获取完整户型报告,同时会有免费语音讲解服务
-
43043元/㎡
本月挂牌均价
-
0.38%
环比上月
买房加房产交流群,省钱不踩雷
3000+人正在热聊
- 免费咨询
- 专业服务
- 区域解读
- 户型分析

