奥体* 好楼层 视野开阔 看房方便 业主诚心卖
-
55万
总价
-
1室1厅
户型
-
48㎡
建筑面积
买房加房产交流群,省钱不踩雷
3000+人正在热聊
加入群聊
-
单价
11459元/平米
- 挂牌价格解析
-
楼层
高楼层/30层
- 咨询楼层
-
套内
暂无数据
- 咨询套内使用面积
-
楼型
塔楼
-
朝向
西南
-
装修
其他
-
供暖
集中供暖
-
发布
2025-04-16
-
地铁
距2号线营盘街站约746米
-
咨询总首付
首付约19.3万
首付税费及佣金情况 -
深度测评
小区华润置地悦玺(浑南-奥体中心)
-
更多
楼户比、楼层高度、交易历史、抵押信息
周边配套
地址:浑南中路与天坛南街交汇处
交通综合评分
查看全部7.0
“较好”
超过沈阳71.1%的小区
-
地铁公交
10.0
-
驾车出行
10.0
本月均价 11734元/m²
环比上月 上涨 6.45%
同比去年 下跌 30.14%
猜你喜欢
同小区其它房源
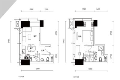
户型齐全,主打采光充足,开放厨房一居
华润置地悦玺户型主要有49平-50平的采光充足,开放厨房的一居 、113平-113平的户型方正,采光充足的三居 。
*获取完整户型报告,同时会有免费语音讲解服务
-
9268元/㎡
本月挂牌均价
-
0.3%
环比上月
买房加房产交流群,省钱不踩雷
3000+人正在热聊
加入群聊
免责声明:房源信息由网站用户提供,其真实性、合法性由信息提供者负责,最终以政府部门登记备案为准。本网站不声明或保证内容之正确性和可靠性,购买该房屋时,请谨慎核查。入学情况仅凭历史经验总结,在此不承诺升学事宜。请您在签订合同之前,切勿支付任何形式的费用,以免上当受骗。



