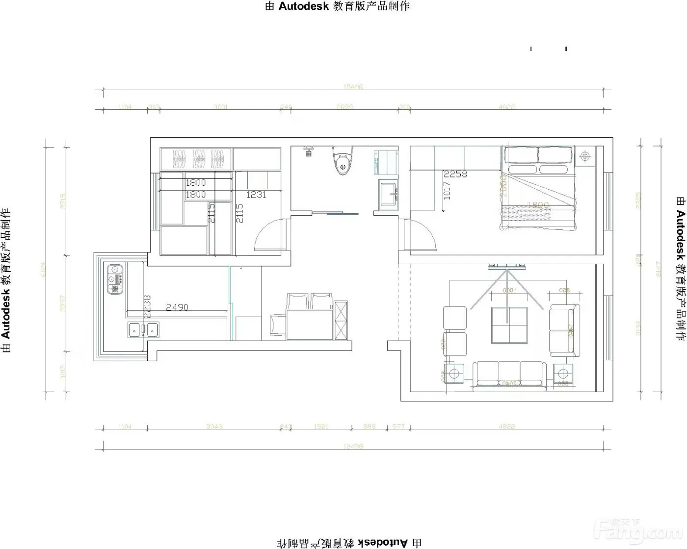
铁西 燕塞湖小区 2室1厅 82.77㎡ 57万
-
57万元
总价
-
2室1厅1卫
户型
-
82.77㎡
建筑面积
买房加房产交流群,省钱不踩雷
3000+人正在热聊
加入群聊
-
单价
6887元/平米
- 挂牌价格解析
-
楼层
高层/6层
- 咨询楼层
-
套内
暂无数据
- 咨询套内使用面积
-
朝向
南北
-
年代
2009
-
发布
2025-06-29
-
地铁
距1号线开发大道站约871米
-
咨询总首付
首付约19.7万
首付税费及佣金情况 -
深度测评
小区燕塞湖小区(铁西-张士)
-
更多
楼户比、楼层高度、交易历史、抵押信息
业主自评
-
fang649812566
加入房天下3349天
接电时间:09:00-22:00
周边配套
地址:铁西区洪湖一街38号
交通综合评分
查看全部6.6
“较好”
超过沈阳13.6%的小区
-
地铁公交
9.0
-
驾车出行
10.0
本月均价 5135元/m²
环比上月 下跌 0.33%
同比去年 下跌 10.15%
猜你喜欢
同小区其它房源
-
8812元/㎡
本月挂牌均价
-
0.42%
环比上月
买房加房产交流群,省钱不踩雷
3000+人正在热聊
加入群聊
联系业主
免责声明:房源信息由网站用户提供,其真实性、合法性由信息提供者负责,最终以政府部门登记备案为准。本网站不声明或保证内容之正确性和可靠性,购买该房屋时,请谨慎核查。入学情况仅凭历史经验总结,在此不承诺升学事宜。请您在签订合同之前,切勿支付任何形式的费用,以免上当受骗。

