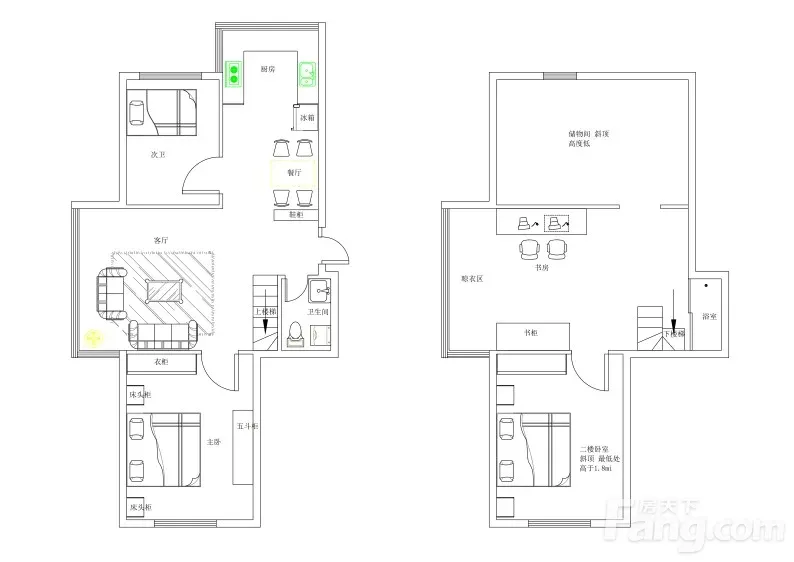
铁西 鑫丰俪城 2室1厅 76.43㎡ 68万
-
68万元
总价
-
2室1厅1卫
户型
-
76.43㎡
建筑面积
买房加房产交流群,省钱不踩雷
3000+人正在热聊
加入群聊
-
单价
8897元/平米
- 挂牌价格解析
-
楼层
顶层/6层
- 咨询楼层
-
套内
暂无数据
- 咨询套内使用面积
-
朝向
南北
-
年代
2007
-
发布
2025-06-12
-
地铁
距9号线北二路站约985米
-
咨询总首付
首付约24.4万
首付税费及佣金情况 -
深度测评
小区鑫丰俪城(铁西-北二路)
-
更多
楼户比、楼层高度、交易历史、抵押信息
业主自评
-
zidane
加入房天下3334天
接电时间:09:00-22:00
周边配套
地址:北二马路景兴北街32号
交通综合评分
查看全部5.2
“一般”
超过沈阳17.0%的小区
-
地铁公交
10.0
-
城际交通
4.0
本月均价 9487元/m²
环比上月 下跌 0.05%
同比去年 下跌 2.49%
猜你喜欢
同小区其它房源
户型齐全,主打户型方正,明厨,客厅朝南,主卧朝南二居
鑫丰俪城户型主要有56平-117平的户型方正,明厨,客厅朝南,主卧朝南的二居 、114平-137平的户型方正,明厨,双阳台,双卧朝南的三居 、36平-44平的户型方正,明厨,主卧朝南的一居 。
*获取完整户型报告,同时会有免费语音讲解服务
-
8257元/㎡
本月挂牌均价
-
0.67%
环比上月
买房加房产交流群,省钱不踩雷
3000+人正在热聊
加入群聊
联系业主
免责声明:房源信息由网站用户提供,其真实性、合法性由信息提供者负责,最终以政府部门登记备案为准。本网站不声明或保证内容之正确性和可靠性,购买该房屋时,请谨慎核查。入学情况仅凭历史经验总结,在此不承诺升学事宜。请您在签订合同之前,切勿支付任何形式的费用,以免上当受骗。

