二环旁,宁静舒适三居室,南北通透,复式带露台
-
77万元
总价
-
3室3厅1卫
户型
-
100.1㎡
建筑面积
买房加房产交流群,省钱不踩雷
3000+人正在热聊
加入群聊
-
单价
7692元/平米
- 挂牌价格解析
-
楼层
顶层/6层
- 咨询楼层
-
套内
暂无数据
- 咨询套内使用面积
-
朝向
南北
-
发布
2024-10-14
-
地铁
暂无数据
-
咨询总首付
首付约26.7万
首付税费及佣金情况 -
深度测评
小区保利上林湾(于洪-白山路)
-
更多
楼户比、楼层高度、交易历史、抵押信息
业主自评
-
喜子
加入房天下3736天
接电时间:09:00-22:00
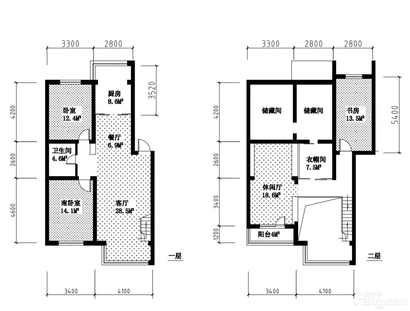
欢迎来到保利上林湾,这里是沈阳于洪区的一个现代化居住社区。该房源位于白山路社区内,面积为100.10平方米,设计为3室3厅1卫,布局合理,南北通透,采光良好,特别适合家庭居住。走进这套房子,首先映入眼帘的是宽敞的客厅,连接着明亮的阳台,让您尽享阳光的沐浴与新鲜空气的流通。客厅与餐厅相连,开放式的设计让空间显得更加宽敞通透,非常适合家庭聚会和平时的休闲放松。同时,三间卧室的设计保证了每个家庭成员的隐私与舒适感,主卧室宽敞明亮,配有大窗户,通风良好。保利上林湾社区设施齐全,环境优美,绿化覆盖率高。这里的物业服务水平高,安全保障措施完善,让您居住无忧。社区周边生活配套设施齐全,超市、便利店、餐馆、银行等一应俱全,生活便利。同时,交通也十分便利,多个公交站点和地铁线路在附近,出行非常方便。总的来说,这套位于保利上林湾的房子不仅拥有优越的地理位置和便利的交通条件,还配备了完善的生活设施和舒适的居住环境,特别适合追求高品质生活的家庭。欢迎前来咨询与实地看房,相信这将成为您理想的居住选择。
欢迎来到保利上林湾,这里是沈阳于洪区的一个现代化居住社区。该房源位于白山路社区内,面积为100.10平方米,设计为3室3厅1卫,布局合理,南北通透,采光良好,特别适合家庭居住。走进这套房子,首先映入眼帘的是宽敞的客厅,连接着明亮的阳台,让您尽享阳光的沐浴与新鲜空气的流通。客厅与餐厅相连,开放式的设计让空间显得更加宽敞通透,非常适合家庭聚会和平时的休闲放松。同时,三间卧室的设计保证了每个家庭成员的隐私与舒适感,主卧室宽敞明亮,配有大窗户,通风良好。保利上林湾社区设施齐全,环境优美,绿化覆盖率高。这里的物业服务水平高,安全保障措施完善,让您居住无忧。社区周边生活配套设施齐全,超市、便利店、餐馆、银行等一应俱全,生活便利。同时,交通也十分便利,多个公交站点和地铁线路在附近,出行非常方便。总的来说,这套位于保利上林湾的房子不仅拥有优越的地理位置和便利的交通条件,还配备了完善的生活设施和舒适的居住环境,特别适合追求高品质生活的家庭。欢迎前来咨询与实地看房,相信这将成为您理想的居住选择。
周边配套
地址:荷兰村白山路172号
交通综合评分
查看全部7.5
“较好”
超过沈阳95.9%的小区
-
地铁公交
9.0
-
驾车出行
9.0
-
城际交通
4.0
本月均价 6900元/m²
环比上月 下跌 1.5%
同比去年 下跌 8.82%
猜你喜欢
同小区其它房源
户型齐全,主打户型方正,明卫,明厨,客厅朝南,全明格局,主卧朝南三居
保利上林湾户型主要有91平-143平的户型方正,明卫,明厨,客厅朝南,全明格局,主卧朝南的三居 、58平-112平的户型方正,明厨,主卧朝南的二居 、59平-59平的户型方正,明厨,客厅朝南的一居 。
*获取完整户型报告,同时会有免费语音讲解服务
-
9064元/㎡
本月挂牌均价
-
0.55%
环比上月
买房加房产交流群,省钱不踩雷
3000+人正在热聊
加入群聊
联系业主
免责声明:房源信息由网站用户提供,其真实性、合法性由信息提供者负责,最终以政府部门登记备案为准。本网站不声明或保证内容之正确性和可靠性,购买该房屋时,请谨慎核查。入学情况仅凭历史经验总结,在此不承诺升学事宜。请您在签订合同之前,切勿支付任何形式的费用,以免上当受骗。

