近木渎 近地铁 精装洋房带电梯!路劲精装修三房两卫 即住
-
149万
总价
-
3室2厅2卫
户型
-
110㎡
建筑面积
买房加房产交流群,省钱不踩雷
3000+人正在热聊
-
单价
13545元/平米
- 挂牌价格解析
-
楼层
高层/10层
- 咨询楼层
-
套内
暂无数据
- 咨询套内使用面积
-
楼型
板楼
-
朝向
南
-
装修
精装修
-
年代
2023
-
发布
2025-02-21
-
咨询总首付
首付约32.5万
首付税费及佣金情况 -
深度测评
小区蔚然锦绣(吴中-香山街道)
-
更多
楼户比、楼层高度、交易历史、抵押信息
房源描述(1)
-
核心卖点问经纪人
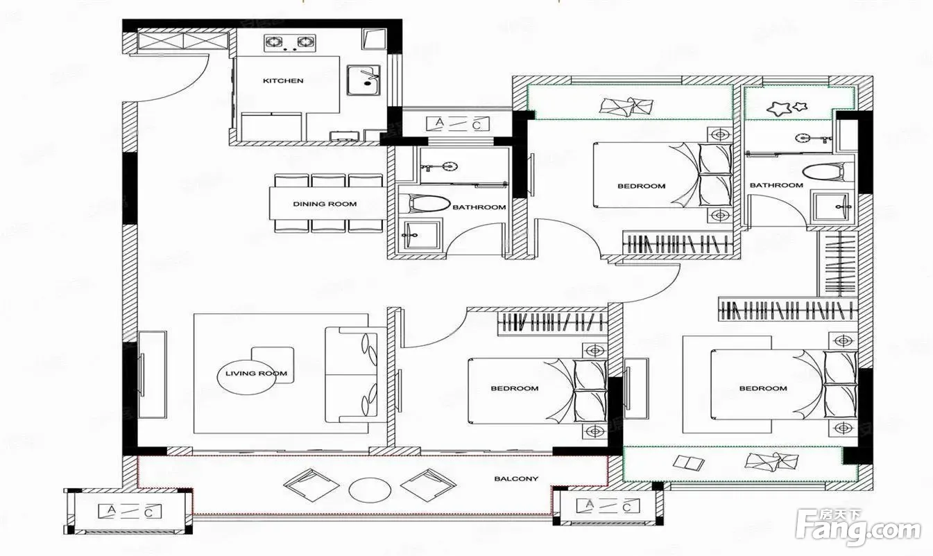
户型方正 太湖度假区 蔚然锦绣精装修四房洋房横厅户型 香山双阳台
-
业主心态问经纪人
房东置换,诚心出售,价格可以再谈,欢迎看房,随时恭候。
-
小区配套问经纪人
位置:小区地理位置佳,绿化率高,居民素质高配套:有健身器材,小型篮球场,可供小区居民使用 车位:停车位充足,建有地上停车场和地下车库 保安:小区内24保安巡逻
-
服务介绍问经纪人
本人从事房地产多年,公司有大量好房源,欢迎进入我的店铺查看,欢迎随时电话咨询,相信我的专业,为您置业安家保驾护航。
-
税费分析房贷计算
新房: 房税费首套房契税1至3个点。物业费2元到3元一平方。 购买新房主要税费: 契税:90平以内:1% ;90-124 平收1.5%;124平以上收2%(交房后地税收取) 注:以上收费仅供参考
周边配套
交通综合评分
查看全部超过苏州0.0%的小区
-
地铁公交
5.0
-
驾车出行
9.0
本月均价 13377元/m²
环比上月 下跌 1.88%
同比去年 上涨 5.58%
猜你喜欢
同小区其它房源
户型齐全,主打南北通透,全明格局三居
蔚然锦绣户型主要有96平-110平的南北通透,全明格局的三居 、128平-128平的南北通透,全明格局的四居 。
*获取完整户型报告,同时会有免费语音讲解服务
买房加房产交流群,省钱不踩雷
3000+人正在热聊
- 免费咨询
- 专业服务
- 区域解读
- 户型分析


