阿卡迪亚四区新上联排边户,有钥匙看房方便
-
1066万
总价
-
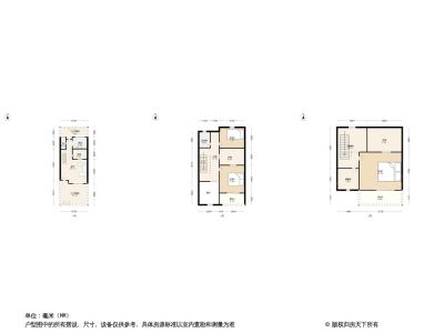
4室2厅3卫
户型
-
133.13㎡
建筑面积
买房加房产交流群,省钱不踩雷
3000+人正在热聊
-
单价
80072元/平米
- 挂牌价格解析
-
楼层
3层
- 咨询楼层
-
套内
暂无数据
- 咨询套内使用面积
-
楼型
独栋
-
朝向
南
-
装修
简装修
-
年代
2017
-
发布
2025-03-10
-
咨询总首付
首付约231.3万
首付税费及佣金情况 -
深度测评
小区阿卡迪亚四区(工业园区-青剑湖)
-
更多
楼户比、楼层高度、交易历史、抵押信息
房源描述(1)
-
核心卖点问经纪人
小区是属于阿卡迪亚四区,纯别墅小区,2015年交房,小区分为联排别墅和合院别墅,人车分流,小区没有地下室,全部地下车位。小区的环境很好,在小区散步堪比公园,小区处处实景,很多业主都爱种花花草草,打理的很漂亮,小区的密度很低,道路宽敞。 阿卡迪亚四区新上联排边户,有钥匙看房方便 目前税费有契税、个税、增值税三种,根据每个客户的情况不同,有以下划分,契税(首套≤90平1%;首套>90平1.5%;二套<90平1%二套≥90平2%,三套全部3%);个税(房龄满5年且业主江苏一套房,免征,反之1%);增值税(房龄2年以上免征,反之≈5.334%) 小区门口中环线路口,出行方便,门口多路公交站台,巴士,可走到阳澄湖湿地公园,环境优美,饭后散步好地方。
-
业主心态问经纪人
房东置换,诚心出售,价格可以再谈,欢迎看房,随时恭候。
-
小区配套问经纪人
教育:一路之隔是苏州工业园区翡翠 和苏州工业园区第三:一路之隔是(科技城邻里购物)、 龙湖天街生活便利
-
服务介绍问经纪人
本人从事房地产多年,公司有大量好房源,欢迎进入我的店铺查看,欢迎随时电话咨询,相信我的专业,为您置业安家保驾护航。
-
税费分析房贷计算
新房: 房税费首套房契税1至3个点。 物业费2元到3元一平方。 购买新房主要税费: 契税:90平以内:1% ;90-124 平收1.5%;124平以上收2%(交房后地税收取) 注:以上收费仅供参考
周边配套
交通综合评分
查看全部超过苏州99.3%的小区
-
地铁公交
5.0
-
城际交通
9.0
猜你喜欢
同小区其它房源
户型齐全,主打明卫,户型方正,客厅朝南四居
阿卡迪亚四区户型主要有122平-408平的明卫,户型方正,客厅朝南的四居 、162平-261平的户型方正,客厅朝南的五居 、122平-142平的户型方正,客厅朝南,明卫,独立衣帽间,主卧朝南的三居 。
*获取完整户型报告,同时会有免费语音讲解服务
买房加房产交流群,省钱不踩雷
3000+人正在热聊
- 免费咨询
- 专业服务
- 区域解读
- 户型分析


