小户型,近商圈,小区中心位置,居家装修
-
360万
总价
-
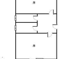
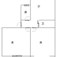
2室1厅
户型
-
59.79㎡
建筑面积
买房加房产交流群,省钱不踩雷
3000+人正在热聊
加入群聊
-
单价
60211元/平米
- 挂牌价格解析
-
楼层
中楼层/7层
- 咨询楼层
-
套内
暂无数据
- 咨询套内使用面积
-
朝向
南
-
装修
精装
-
年代
1984
-
发布
2025-10-27
-
地铁
距2号线娄山关路站约318米
-
咨询总首付
首付约133万
首付税费及佣金情况 -
深度测评
小区玉屏南路560弄小区(长宁-天山)
-
更多
楼户比、楼层高度、交易历史、抵押信息
周边配套
地址:玉屏南路560弄
交通综合评分
查看全部8.5
“较好”
超过上海9.6%的小区
-
地铁公交
10.0
-
驾车出行
10.0
-
城际交通
5.0
本月均价 59958元/m²
环比上月 持平
同比去年 下跌 8.94%
猜你喜欢
同小区其它房源
户型齐全,主打户型方正,明厨,明卫,主卧朝南二居
玉屏南路560弄小区户型主要有38平-50平的户型方正,明厨,明卫,主卧朝南的二居 、36平-40平的户型方正,明厨,明卫,客厅朝南,全明格局的一居 。
*获取完整户型报告,同时会有免费语音讲解服务
买房加房产交流群,省钱不踩雷
3000+人正在热聊
加入群聊
免责声明:房源信息由网站用户提供,其真实性、合法性由信息提供者负责,最终以政府部门登记备案为准。本网站不声明或保证内容之正确性和可靠性,购买该房屋时,请谨慎核查。入学情况仅凭历史经验总结,在此不承诺升学事宜。请您在签订合同之前,切勿支付任何形式的费用,以免上当受骗。



