淮海中路双开间新里,整栋有露台有天井各20平,可停车
-
4200万
总价
-
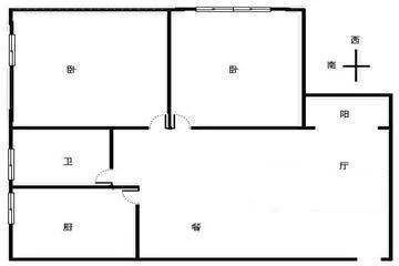
5室2厅
户型
-
197.8㎡
建筑面积
买房加房产交流群,省钱不踩雷
3000+人正在热聊
加入群聊
-
单价
212336元/平米
- 挂牌价格解析
-
楼层
低楼层/3层
- 咨询楼层
-
套内
暂无数据
- 咨询套内使用面积
-
楼型
板楼
-
朝向
南
-
装修
精装
-
供暖
暂无数据
-
发布
2024-05-05
-
地铁
距10号线(新江湾城-虹桥火车站)交通大学站约241米
-
咨询总首付
首付约1257.9万
首付税费及佣金情况 -
深度测评
小区淮海别墅(长宁-新华路)
-
更多
楼户比、楼层高度、交易历史、抵押信息
周边配套
地址:淮海中路1984弄
交通综合评分
查看全部5.5
“一般”
超过上海71.1%的小区
-
地铁公交
10.0
-
城际交通
5.0
本月均价 142427元/m²
环比上月 持平
同比去年 上涨 3.82%
买房加房产交流群,省钱不踩雷
3000+人正在热聊
加入群聊
免责声明:房源信息由网站用户提供,其真实性、合法性由信息提供者负责,最终以政府部门登记备案为准。本网站不声明或保证内容之正确性和可靠性,购买该房屋时,请谨慎核查。入学情况仅凭历史经验总结,在此不承诺升学事宜。请您在签订合同之前,切勿支付任何形式的费用,以免上当受骗。



