房天下APP

01月上海特价二手房

房天下买房小程序

看房源分析报告 户型解读报告

满五 满五

!!来电咨询少4萬 中间楼层位置好 配套齐全生活方便

  • 20万

    总价

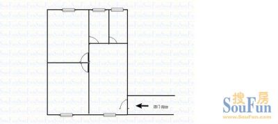
  • 2室1厅1卫

    户型

  • 43㎡

    建筑面积

买房加房产交流群,省钱不踩雷

3000+人正在热聊

加入群聊

房源描述(1)

  • 徐威 评分:4.1

    鸿途房产
  • 核心卖点问经纪人

    1.小区位置好,出行方便! 2.周边配套齐全,近公交站、超市、菜场、医院、银行等,生活方便快捷! 3.小区内绿化率高,空气清新,鸟语花香;入住率高,邻里关系和睦! 4.房源布局合理;得房率高! 5.房东诚心出售,钥匙在店,看房方便,来电即可预约看房! 6.此房为急售房,随时可能卖掉有需要请马上联系!

  • 业主心态问经纪人

    每周和业主保持沟通,确认业主售房心态及签约条件,时时把控业主心里价位。业主也很信任我们,除了配合拍摄照片视频外,还将钥匙寄放,方便客户线下看房,如您需要,可随时电话预约看房!如您想要了解崇明农场其他在售房源房型、小区以 价欢迎您随时电话联系!我将给予您详细解答!

  • 小区配套问经纪人

    位置:小区地理位置佳,绿化率高,居民素质高 配套:有健身器材,小型篮球场,可供小区居民使用 车位:停车位充足,建有地上停车场和地下车库 保安:小区内24保安巡逻

  • 服务介绍问经纪人

    本人从事房地产多年,公司有大量好房源,欢迎进入我的店铺查看,欢迎随时电话咨询,相信我的专业,为您置业安家保驾护航。

周边配套

地址:长征公路1880号

本月均价 6951元/m²

环比上月 持平

同比去年 下跌 3.73%

猜你喜欢

同小区其它房源

户型齐全,主打二居

长乐一村户型主要有45平-63平的的二居 。

*获取完整户型报告,同时会有免费语音讲解服务

  • 9743元/㎡

    本月挂牌均价

  • 持平

    环比上月

买房加房产交流群,省钱不踩雷

3000+人正在热聊

加入群聊
  • 免费咨询
  • 专业服务
  • 区域解读
  • 户型分析
  • 徐威 评分 4.1

    鸿途房产

要卖房?先来查房价看看行情

为您提供专业的房源定价及卖房服务

帮你卖房
免责声明:房源信息由网站用户提供,其真实性、合法性由信息提供者负责,最终以政府部门登记备案为准。本网站不声明或保证内容之正确性和可靠性,购买该房屋时,请谨慎核查。入学情况仅凭历史经验总结,在此不承诺升学事宜。请您在签订合同之前,切勿支付任何形式的费用,以免上当受骗。