嘉天汇老静安頂豪,高区,业主没有顶住,急售,急售,
-
2800万
总价
-
4室2厅3卫
户型
-
232.93㎡
建筑面积
买房加房产交流群,省钱不踩雷
3000+人正在热聊
-
单价
120208元/平米
- 挂牌价格解析
-
楼层
高层/36层
- 咨询楼层
-
套内
231.7㎡
- 咨询套内使用面积
-
楼型
板楼
-
朝向
南北
-
装修
精装修
-
年代
2015
-
发布
2025-11-07
-
地铁
距2号线静安寺站约821米
-
咨询总首付
首付约838.6万
首付税费及佣金情况 -
深度测评
小区嘉天汇公寓(静安-静安寺)
-
更多
楼户比、楼层高度、交易历史、抵押信息
-
核验码
202100893492
房源描述(1)
-
核心卖点问经纪人
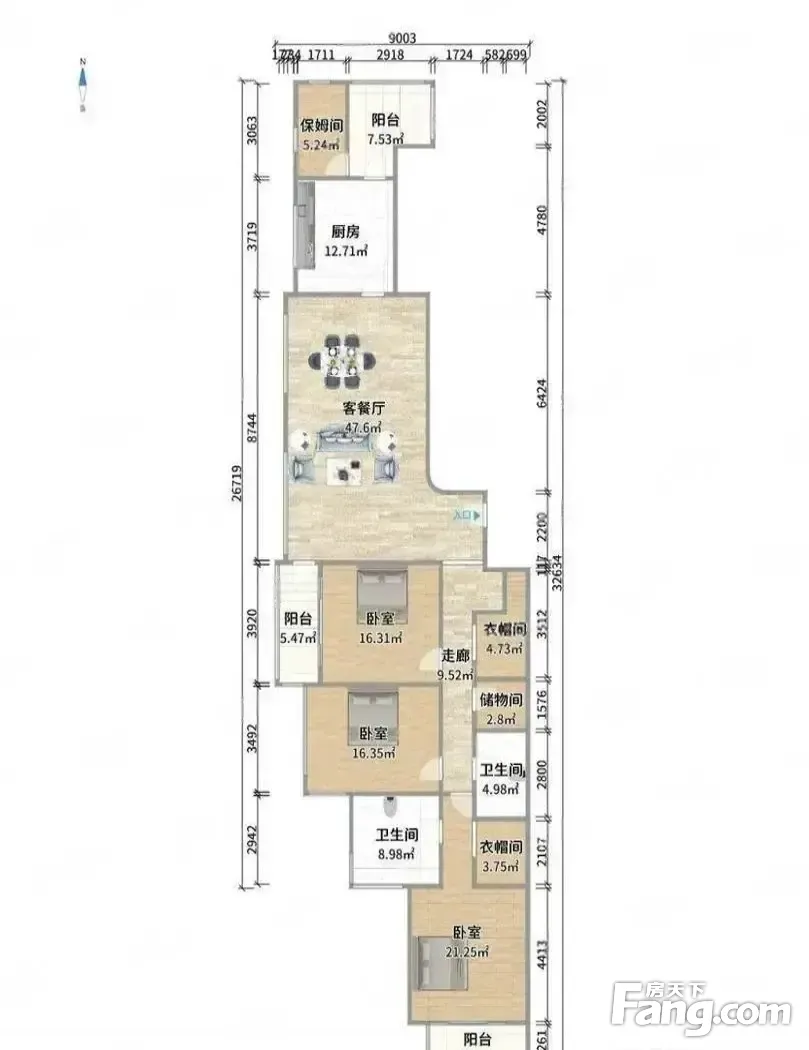
此房我亲自查勘过,视频是我本人亲自拍摄,带看过 【1】:房本面积为232.93平米,主体南北向4居,明厨+明卫,属于整个小区都极的全明格局户型。 【2】卧室:主卧南向大开窗,房型主体{{dtowardName}}朝向,居家享受。 【3】格局:标准动静分离与公私分区同时满足的格局,客厅、厨房与卧室等完全分隔开来,充分满足日常家居生活所需的与安宁。 【4】空间:充分利用了空间,以客厅至卧室的走廊为中心点,而客厅、厨房、卫生间、卧室等则紧密环绕在此点,户型方正,空间感十足。
-
业主心态问经纪人
房东置换,诚心出售,可以再谈,欢迎看房,随时恭候。
-
小区配套问经纪人
小区地理位置佳,绿化环境优越整洁,居民素质高,物业管理完善,适宜居住
-
服务介绍问经纪人
本人做房产多年,一直本着专业的房产知识,为您服务,我会在短的时间内帮您买好满意的房子,不让您错失任何好房子,更不让您每天为买房的事烦心,欢迎随时拨打我电话。
-
税费分析房贷计算
关于本房的税费信息情况,请电话联系我,我将详细的为您讲解!
-
户型解读问经纪人
房屋拥有相对宽松的尺寸,布局通透,动静分离,设计豪华
周边配套
交通综合评分
查看全部超过上海67.8%的小区
-
地铁公交
10.0
-
驾车出行
7.0
-
城际交通
9.0
本月均价 168863元/m²
环比上月 持平
同比去年 下跌 22.51%
猜你喜欢
同小区其它房源
户型齐全,主打明卫,双阳台,双卧朝南三居
嘉天汇公寓户型主要有169平-232平的明卫,双阳台,双卧朝南的三居 、321平-321平的户型方正,明卫,双阳台,主卧朝南的五居 。
*获取完整户型报告,同时会有免费语音讲解服务
-
105015元/㎡
本月挂牌均价
-
持平
环比上月
买房加房产交流群,省钱不踩雷
3000+人正在热聊
- 免费咨询
- 专业服务
- 区域解读
- 户型分析


