天籁园装修这么好的少见啊! 直接住还带室内电梯
-
2430万
总价
-
5室3厅4卫
户型
-
362㎡
建筑面积
买房加房产交流群,省钱不踩雷
3000+人正在热聊
-
单价
67127元/平米
- 挂牌价格解析
-
楼层
2层
- 咨询楼层
-
套内
361㎡
- 咨询套内使用面积
-
楼型
独栋
-
朝向
南
-
装修
精装修
-
年代
2005
-
发布
2025-08-26
-
咨询总首付
首付约728.6万
首付税费及佣金情况 -
深度测评
小区天籁园(闵行-颛桥)
-
更多
楼户比、楼层高度、交易历史、抵押信息
-
核验码
202100356206
房源描述(1)
-
核心卖点问经纪人
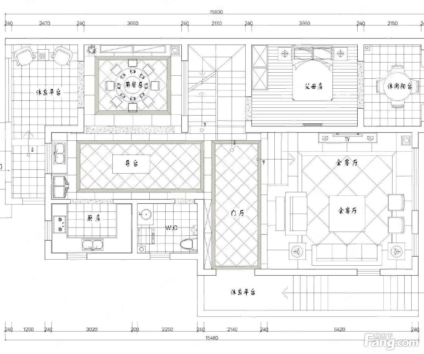
【面积】:产证面积362平;带450平花园; 【户型】:5房3厅4卫,其中4个房间是套房带独卫,带大露台,1个房间是书房,目前业主自住,看房提前约即可; 【价格】:目前房东报价,诚意卖,看中价格可谈; 【装修】:豪华装修、外立面干挂石材、全屋大理石贴面、空调地暖、装修耗时2年半时间、装修费用1、户型有改动、改动后使用面积500平+; 【产权】:产权夫妻2个人; 【看房】:业主自住,提前预约;
-
业主心态问经纪人
房东诚意出售此处不动产,之前自己居住,装修费了很大精力,现在家里人口多了,想要换到绿城玫瑰园大宅,您如有兴趣可提前预约看房,目前的报价在你实地看中房屋之后可进行合理的洽谈沟通,如果您还有其他自身购房情况的要求需要买卖双方达成一致,亦可在看房后提出,我会尽力为您去和房东方商榷。
-
小区配套问经纪人
小区环境优雅,配套成熟,周边交通便利,居住舒适。
-
服务介绍问经纪人
1.匹配适合的房源,陪同看房 2.给您的建议,市场分析,小区分析 3.您看中的房源,用我们的与房东进行洽谈,达成谈判条件,促成合约 4.从签定居间协议后,网签合同,评估,审税,审,过户,等一系列
-
税费分析房贷计算
产权干净,税费清晰,欢迎咨询该房屋详情,静候您的!
周边配套
交通综合评分
查看全部超过上海29.1%的小区
-
地铁公交
10.0
-
驾车出行
10.0
猜你喜欢
同小区其它房源
户型齐全,主打户型方正,客厅朝南,明卫,双阳台四居
天籁园户型主要有241平-310平的户型方正,客厅朝南,明卫,双阳台的四居 、236平-352平的户型方正,明厨,独立衣帽间,明卫,主卧朝南的五居 。
*获取完整户型报告,同时会有免费语音讲解服务
-
45166元/㎡
本月挂牌均价
-
持平
环比上月
买房加房产交流群,省钱不踩雷
3000+人正在热聊
- 免费咨询
- 专业服务
- 区域解读
- 户型分析


