电梯加装完毕,赠送两个大露台,业主超诚意出售。
-
678万
总价
-
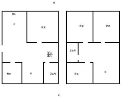
4室2厅2卫
户型
-
154.98㎡
建筑面积
买房加房产交流群,省钱不踩雷
3000+人正在热聊
-
单价
43748元/平米
- 挂牌价格解析
-
楼层
顶层/6层
- 咨询楼层
-
套内
暂无数据
- 咨询套内使用面积
-
楼型
板楼
-
朝向
南北
-
装修
中装修
-
年代
2003
-
发布
2025-08-29
-
咨询总首付
首付约203.3万
首付税费及佣金情况 -
深度测评
小区家旺新苑(嘉定-丰庄)
-
更多
楼户比、楼层高度、交易历史、抵押信息
-
核验码
202509735149
房源描述(1)
-
核心卖点问经纪人
没税没贷款 看房子可以预约本人从事房产多年,主营普陀区二手房业务。相信以我精湛的专业能力和对区域各小区的详细了解,希望能够为您提供及时的房产咨询和安全专业的房产服务!!我将已真诚的服务态度和专业的业务能力为你在购房过程中大限度的节省看房时间不跑冤枉路!并节省每一分可节省的费用,以短的时间选到满意的房源。让我们在愉快的选房过程中成为您的新朋友!!!
-
业主心态问经纪人
网络看房给您带来了便利的同时,您也要会辨别真假信息您可能会看到很多相同的房源图片,价格却相差几万、十几万、几十万有些房源低于市场价很多很多,但请您留心了,天上不会掉馅饼的本人始终坚持,所有图片亲自拍摄,户型图纯手动描绘,可以辨别真假!
-
服务介绍问经纪人
您好!我是上海易轩地产钱成才,大学毕业后精耕周边商圈5年有余,对二手房买卖各个环节都非常熟悉!手上操作过上百套房产交易,处理过各种疑难杂症!贴心,用心,让您放心一直是我秉持服务理念!在您找房的路上小钱
-
税费分析房贷计算
满五年、产权税费清晰,想了解更加详细的内容可直接来电。
周边配套
交通综合评分
查看全部超过上海68.6%的小区
-
地铁公交
10.0
-
驾车出行
10.0
-
城际交通
4.0
本月均价 42511元/m²
环比上月 持平
同比去年 下跌 24.42%
猜你喜欢
同小区其它房源
户型齐全,主打户型方正,明厨,明卫,双阳台,主卧朝南二居
家旺新苑户型主要有66平-105平的户型方正,明厨,明卫,双阳台,主卧朝南的二居 、127平-127平的户型方正,明厨,明卫,双阳台的三居 、151平-151平的明厨,明卫,客厅朝南,双阳台的四居 。
*获取完整户型报告,同时会有免费语音讲解服务
-
42263元/㎡
本月挂牌均价
-
持平
环比上月
买房加房产交流群,省钱不踩雷
3000+人正在热聊
- 免费咨询
- 专业服务
- 区域解读
- 户型分析


