开发商内部保留房(一手订单转让)近地铁(嘉闵),大平层景观房
-
450万
总价
-
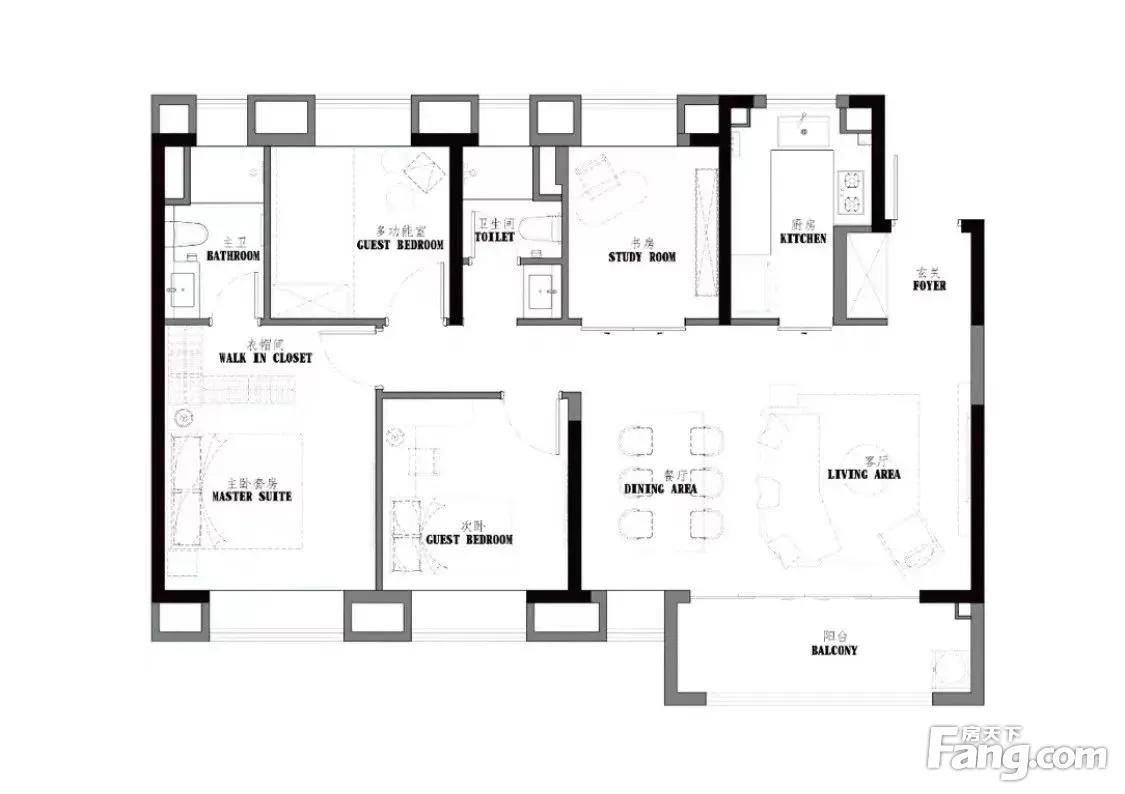
4室2厅2卫
户型
-
130㎡
建筑面积
买房加房产交流群,省钱不踩雷
3000+人正在热聊
-
单价
34615元/平米
- 挂牌价格解析
-
楼层
高层/8层
- 咨询楼层
-
套内
暂无数据
- 咨询套内使用面积
-
楼型
板楼
-
朝向
南北
-
装修
精装修
-
年代
2023
-
发布
2024-11-24
-
地铁
暂无数据
-
咨询总首付
首付约271.8万
首付税费及佣金情况 -
深度测评
小区金地·嘉悦湾(嘉定-马陆)
-
更多
楼户比、楼层高度、交易历史、抵押信息
-
核验码
202000254529
房源描述(1)
-
核心卖点问经纪人
此房源:近地铁嘉闵线号线(大赠送)送阳台 产证面积:130平,大附赠空间 ! 赠送大空间,大窗 阳台,全天采光! 适合大部分有房屋要求的客户 ,房型和更多细节与价格请致电详谈! 预约看房 更方便,电话沟通 更直接! 另有上海各区更多新房:更多新房保留房、具体请致电咨询! 185咨询1666致电6884 张经理!
-
业主心态问经纪人
社区介绍: 环境优美 适文素质高 物业管理完善 1、本楼环境比较好:、社区环境好 2: 价格有空间、更多请详情咨询! 3、品质社区、精挑细选、地段优越 先来看:再说价格的事情! 另有全上海一手新房(专车接送看房)新房团购价格低 预约看房,可谈价,电话沟通 更直接! 185看房1666看房6884高升(w信同号) 另有更多新房:更多新房保留房,同享受9折-99折不等,具体咨询!
-
服务介绍问经纪人
致电咨询:可获取【上海所有新房项目优惠咨询】 让新房价格更透明,让新法规折扣更透明1 作者已从事房地产行业11年有余! 主营业务:上海新房讲解、新房团优惠、新房折扣咨询、板块分析、上海各区新房咨询!
周边配套
交通综合评分
查看全部超过上海0.0%的小区
-
地铁公交
5.0
-
驾车出行
10.0
本月均价 36175元/m²
环比上月 持平
同比去年 下跌 19.61%
猜你喜欢
同小区其它房源
户型齐全,主打南北通透,客厅朝南,卧室朝南三居
金地·嘉悦湾户型主要有88平-93平的南北通透,客厅朝南,卧室朝南的三居 、70平-70平的南北通透,全明格局的二居 、115平-115平的户型方正,三开间朝南,主卧带卫的四居 。
*获取完整户型报告,同时会有免费语音讲解服务
-
30257元/㎡
本月挂牌均价
-
持平
环比上月
买房加房产交流群,省钱不踩雷
3000+人正在热聊
- 免费咨询
- 专业服务
- 区域解读
- 户型分析


