春天花园4室2厅南
-
86万
总价
-
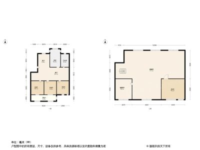
4室2厅
户型
-
151.97㎡
建筑面积
-
单价
5660元/平米
- 挂牌价格解析
-
楼层
高楼层/7层
- 咨询楼层
-
套内
暂无数据
- 咨询套内使用面积
-
楼型
板塔结合
-
朝向
南
-
装修
简装
-
供暖
自供暖
-
发布
2025-08-02
-
地铁
距1号线振兴路站约873米
-
深度测评
小区春天花园(开发区-新开)
-
更多
楼户比、楼层高度、交易历史、抵押信息
周边配套
地址:南通市开发区新开河东、振兴路南
交通综合评分
查看全部6.1
“较好”
超过南通91.1%的小区
-
地铁公交
10.0
-
驾车出行
7.0
本月均价 7790元/m²
环比上月 下跌 2.82%
同比去年 下跌 11.77%
猜你喜欢
同小区其它房源
户型齐全,主打户型方正,明厨,明卫三居
春天花园户型主要有90平-142平的户型方正,明厨,明卫的三居 、74平-96平的户型方正,明厨,明卫,客厅朝南,主卧朝南的二居 、55平-136平的户型方正,明厨,明卫,双阳台的一居 。
*获取完整户型报告,同时会有免费语音讲解服务
-
7451元/㎡
本月挂牌均价
-
1.25%
环比上月
免责声明:房源信息由网站用户提供,其真实性、合法性由信息提供者负责,最终以政府部门登记备案为准。本网站不声明或保证内容之正确性和可靠性,购买该房屋时,请谨慎核查。入学情况仅凭历史经验总结,在此不承诺升学事宜。请您在签订合同之前,切勿支付任何形式的费用,以免上当受骗。



