军山汇贤居127平毛坯三房看房子方便有车位
-
158万
总价
-
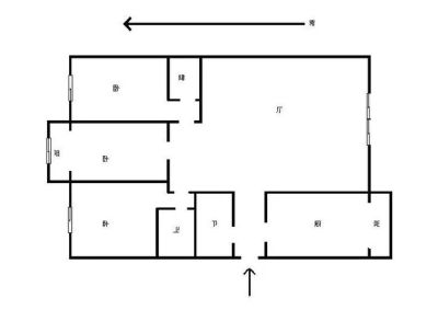
3室2厅
户型
-
127.01㎡
建筑面积
-
单价
12440元/平米
- 挂牌价格解析
-
楼层
高楼层/10层
- 咨询楼层
-
套内
暂无数据
- 咨询套内使用面积
-
楼型
板楼
-
朝向
南
-
装修
精装
-
供暖
自供暖
-
发布
2022-09-02
-
地铁
暂无数据
-
深度测评
小区军山汇贤居(开发区-瑞慈医院)
-
更多
楼户比、楼层高度、交易历史、抵押信息
周边配套
地址:南通市经济技术开发区常青路8号(瑞慈医院北50米)
交通综合评分
查看全部4.0
“一般”
超过南通56.7%的小区
-
地铁公交
10.0
本月均价 9040元/m²
环比上月 下跌 0.48%
同比去年 下跌 19.52%
猜你喜欢
同小区其它房源
户型齐全,主打户型方正,明卫,客厅朝南,主卧朝南,独立衣帽间,双卧朝南三居
军山汇贤居户型主要有100平-170平的户型方正,明卫,客厅朝南,主卧朝南,独立衣帽间,双卧朝南的三居 、76平-92平的户型方正,明厨,明卫,主卧朝南的二居 、210平-390平的户型方正,明卫,明厨,双阳台,主卧朝南的其他居 。
*获取完整户型报告,同时会有免费语音讲解服务
-
14911元/㎡
本月挂牌均价
-
1.22%
环比上月
免责声明:房源信息由网站用户提供,其真实性、合法性由信息提供者负责,最终以政府部门登记备案为准。本网站不声明或保证内容之正确性和可靠性,购买该房屋时,请谨慎核查。入学情况仅凭历史经验总结,在此不承诺升学事宜。请您在签订合同之前,切勿支付任何形式的费用,以免上当受骗。



