简装 双阳台 启秀 中层 得房率高
-
119万
总价
-
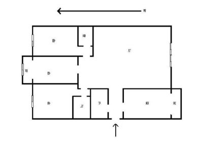
3室1厅
户型
-
74.46㎡
建筑面积
-
单价
15982元/平米
- 挂牌价格解析
-
楼层
中楼层/6层
- 咨询楼层
-
套内
暂无数据
- 咨询套内使用面积
-
楼型
板楼
-
朝向
南
-
装修
简装
-
供暖
自供暖
-
发布
2024-07-13
-
地铁
距2号线体育公园站约693米
-
深度测评
小区莘园路新村(崇川-桃坞路)
-
更多
楼户比、楼层高度、交易历史、抵押信息
周边配套
地址:南通市崇川区姚港路
交通综合评分
查看全部4.0
“一般”
超过南通36.9%的小区
-
地铁公交
10.0
本月均价 15689元/m²
环比上月 上涨 3.27%
同比去年 下跌 14.77%
猜你喜欢
同小区其它房源
户型齐全,主打户型方正,明厨,明卫,主卧朝南二居
莘园路新村户型主要有43平-88平的户型方正,明厨,明卫,主卧朝南的二居 、78平-101平的户型方正,明厨,明卫,客厅朝南,双阳台,主卧朝南的三居 。
*获取完整户型报告,同时会有免费语音讲解服务
-
14773元/㎡
本月挂牌均价
-
2.99%
环比上月
免责声明:房源信息由网站用户提供,其真实性、合法性由信息提供者负责,最终以政府部门登记备案为准。本网站不声明或保证内容之正确性和可靠性,购买该房屋时,请谨慎核查。入学情况仅凭历史经验总结,在此不承诺升学事宜。请您在签订合同之前,切勿支付任何形式的费用,以免上当受骗。



