前排中间楼层,采光好,毛坯任意装修,房东诚心出售
-
48.8万
总价
-
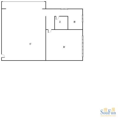
1室1厅
户型
-
62.66㎡
建筑面积
-
单价
7789元/平米
- 挂牌价格解析
-
楼层
中楼层/18层
- 咨询楼层
-
套内
暂无数据
- 咨询套内使用面积
-
朝向
南
-
装修
毛坯
-
供暖
暂无数据
-
发布
2023-12-10
-
地铁
暂无数据
-
深度测评
小区天润家园(崇川-小石桥)
-
更多
楼户比、楼层高度、交易历史、抵押信息
周边配套
地址:南通市人民东路北侧五一路8号
交通综合评分
查看全部4.0
“一般”
超过南通30.6%的小区
-
地铁公交
10.0
本月均价 8637元/m²
环比上月 上涨 0.87%
同比去年 下跌 38.93%
猜你喜欢
同小区其它房源
户型齐全,主打户型方正,明卫,明厨,双卧朝南三居
天润家园户型主要有101平-158平的户型方正,明卫,明厨,双卧朝南的三居 、80平-106平的户型方正,明卫,明厨,主卧朝南的二居 、130平-182平的户型方正,明厨,明卫,主卧朝南的四居 。
*获取完整户型报告,同时会有免费语音讲解服务
-
10344元/㎡
本月挂牌均价
-
1.97%
环比上月
免责声明:房源信息由网站用户提供,其真实性、合法性由信息提供者负责,最终以政府部门登记备案为准。本网站不声明或保证内容之正确性和可靠性,购买该房屋时,请谨慎核查。入学情况仅凭历史经验总结,在此不承诺升学事宜。请您在签订合同之前,切勿支付任何形式的费用,以免上当受骗。



