业主实在卖,电梯两房,装修保养好、
-
46万
总价
-
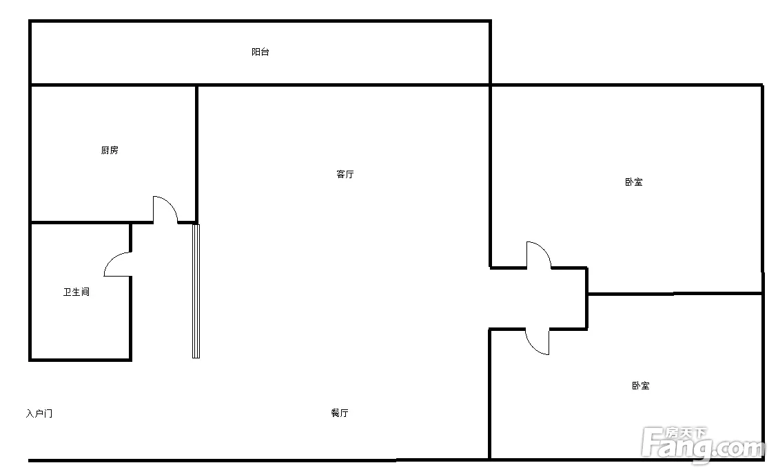
2室2厅1卫
户型
-
84.28㎡
建筑面积
买房加房产交流群,省钱不踩雷
3000+人正在热聊
加入群聊
-
单价
5458元/平米
- 挂牌价格解析
-
楼层
低楼层/18层
- 咨询楼层
-
套内
暂无数据
- 咨询套内使用面积
-
楼型
板楼
-
朝向
东南
-
装修
精装
-
供暖
暂无数据
-
发布
2023-03-13
-
地铁
距2号线秀厢站约1091米
-
深度测评
小区恒大新城(西乡塘-秀厢大道)
-
更多
楼户比、楼层高度、交易历史、抵押信息
周边配套
地址:秀厢大道32号
交通综合评分
查看全部8.2
“较好”
超过南宁71.0%的小区
-
地铁公交
10.0
-
驾车出行
10.0
-
城际交通
4.0
本月均价 5590元/m²
环比上月 上涨 0.03%
同比去年 下跌 11.84%
猜你喜欢
同小区其它房源
户型齐全,主打户型方正,明卫,明厨,双阳台,主卧朝南三居
恒大新城户型主要有84平-147平的户型方正,明卫,明厨,双阳台,主卧朝南的三居 、74平-93平的户型方正,明厨,明卫,双阳台,主卧朝南的二居 、122平-211平的户型方正,明厨,明卫,客厅朝南,全明格局,双卧朝南,主卧朝南的四居 。
*获取完整户型报告,同时会有免费语音讲解服务
买房加房产交流群,省钱不踩雷
3000+人正在热聊
加入群聊
免责声明:房源信息由网站用户提供,其真实性、合法性由信息提供者负责,最终以政府部门登记备案为准。本网站不声明或保证内容之正确性和可靠性,购买该房屋时,请谨慎核查。入学情况仅凭历史经验总结,在此不承诺升学事宜。请您在签订合同之前,切勿支付任何形式的费用,以免上当受骗。



