路桥花园别墅 377.96平5居 南向中装修 方便看房
-
430万
总价
-
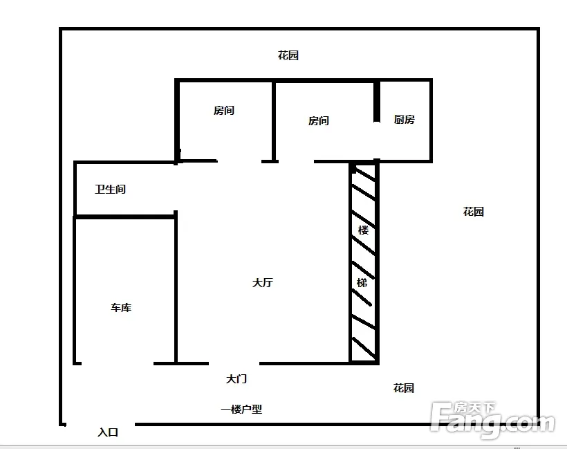
9室2厅4卫
户型
-
377.96㎡
建筑面积
买房加房产交流群,省钱不踩雷
3000+人正在热聊
加入群聊
-
单价
11377元/平米
- 挂牌价格解析
-
楼层
1层
- 咨询楼层
-
套内
375㎡
- 咨询套内使用面积
-
楼型
独栋
-
朝向
南
-
装修
中装修
-
年代
2008
-
发布
2026-04-07
-
深度测评
小区路桥花园别墅(青秀-仙葫经济开发区)
-
更多
楼户比、楼层高度、交易历史、抵押信息
房源描述(1)
-
核心卖点问经纪人
1.房子户型方正,格局安排合理。 2.房子精装修,拎包可入住。 3.老城区商圈,出门即可享吃喝玩乐一体化生活。 4.交通出行方便,有各个公交线。 5.出租容易。拥有地铁口,可用来居然或办公都方便。
-
业主心态问经纪人
业主很信任我,我能了解业主卖房新的动态。目前市场交易量平稳,政策已经基本稳定,是市场触底入手的好时候。请不要错过性价比高的好房。
-
小区配套问经纪人
小区设施 小区中心花园干净整洁,有老人活动的地方,有游泳池,人车分流,配套完整
-
服务介绍问经纪人
本人做房产多年,本着专业的房产知识,为您服务,我会在短的时间内帮您买好满意的房子,不让您错失任何好房子,更不让您每天为买房的事烦心,欢迎随时联系!
-
税费分析房贷计算
房子已经得证五年了,不是一套,有一个点的个人所得税。
周边配套
地址:南宁市仙葫经济开发区蓉茉大道57号
交通综合评分
查看全部5.0
“一般”
超过南宁50.5%的小区
-
地铁公交
5.0
-
驾车出行
10.0
猜你喜欢
同小区其它房源
-
8364元/㎡
本月挂牌均价
-
0.58%
环比上月
买房加房产交流群,省钱不踩雷
3000+人正在热聊
加入群聊
- 免费咨询
- 专业服务
- 区域解读
- 户型分析
免责声明:房源信息由网站用户提供,其真实性、合法性由信息提供者负责,最终以政府部门登记备案为准。本网站不声明或保证内容之正确性和可靠性,购买该房屋时,请谨慎核查。入学情况仅凭历史经验总结,在此不承诺升学事宜。请您在签订合同之前,切勿支付任何形式的费用,以免上当受骗。


