售楼部自己搞53-56万左右一套,当天付钱当天签!
-
46万
总价
-
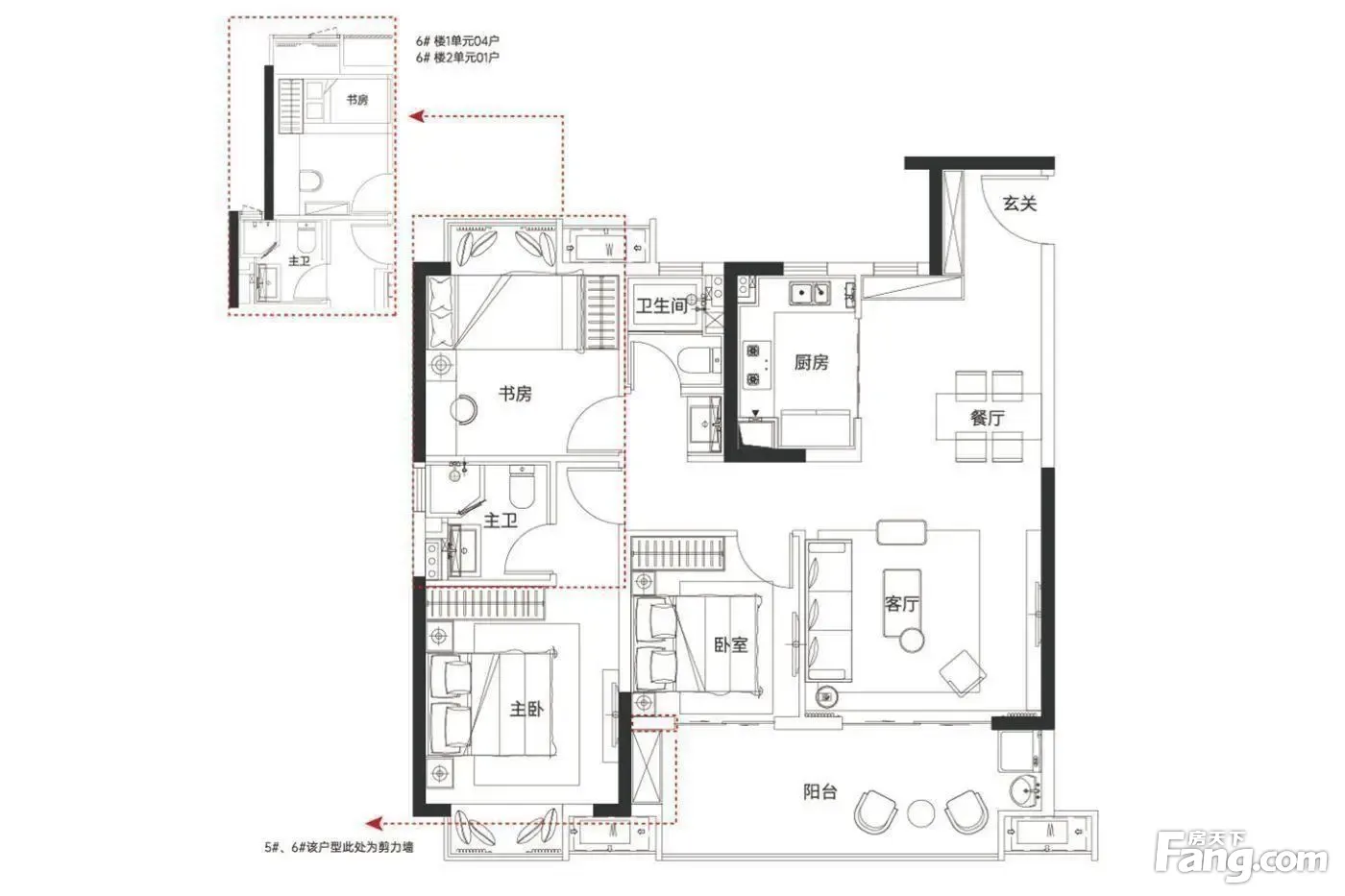
3室1厅1卫
户型
-
89㎡
建筑面积
买房加房产交流群,省钱不踩雷
3000+人正在热聊
-
单价
5169元/平米
- 挂牌价格解析
-
楼层
高层/27层
- 咨询楼层
-
套内
暂无数据
- 咨询套内使用面积
-
楼型
板楼
-
朝向
南
-
装修
简装修
-
年代
2019
-
发布
2026-01-06
-
地铁
暂无数据
-
咨询总首付
首付约18.8万
首付税费及佣金情况 -
深度测评
小区望悦湖金茂悦(新建-望城)
-
更多
楼户比、楼层高度、交易历史、抵押信息
房源描述(1)
-
核心卖点问经纪人
央企品质毛坯、九龙湖西、万达旁、学府环伺、低总价不!加推5#高层(27F),11#小高层(15F),目前在售6、7#,6#27F高层,共2个单元,2梯4户,户型建面约89、112㎡,均价6800元/㎡,预计2023年年底毛坯交付。7#在售,15F小高层,共60套房源,户型建面89、112㎡,毛坯均价7958- 9379元/㎡。
-
业主心态问经纪人
本人2014年大学本科毕业至今一直从事房地产行业 今年第10年 从业年龄高于市面上90%以上的中介,无论您是想购买新房还是二手房 我都可以给您专业的建议,让您少走弯路。更不会让您上当受骗,您在南昌任何一个地方,我都会开车专程接您看房,送您回去,并且承诺:购买新房不收您任何用。买房这件大事,肯定要找一个靠谱的中介。您刚好需要,我刚好专业。欢迎您,拨打我的电话或者加我的详聊: 1 3 7 6 7 0 4 5 7 7 5(同号)
-
小区配套问经纪人
位置:小区地理位置佳,绿化率高,居民素质高配套:有健身器材,小型篮球场,可供小区居民使用 车位:停车位充足,建有地上停车场和地下车库 保安:小区内24保安巡逻
-
服务介绍问经纪人
本人从事房地产多年,公司有大量,欢迎进入我的店铺查看,欢迎随时电话咨询,相信我的专业,为您置业安家保驾护航。
-
税费分析房贷计算
税费:1.住宅 契税 购买的房屋面积 < 90平方 首套和二套都是1个点 三套及以上3个点 购买的房屋面积 》90平方 首套1.5个点 二套2个点 三套及以上3个点2.公寓 契税 3个点
周边配套
交通综合评分
查看全部超过南昌0.0%的小区
-
地铁公交
5.0
-
城际交通
4.0
本月均价 4991元/m²
环比上月 上涨 0.09%
同比去年 下跌 24.37%
猜你喜欢
同小区其它房源
-
6101元/㎡
本月挂牌均价
-
0.99%
环比上月
买房加房产交流群,省钱不踩雷
3000+人正在热聊
- 免费咨询
- 专业服务
- 区域解读
- 户型分析

