青云谱 南莲路水电工程局宿舍 2室1厅
-
20万元
总价
-
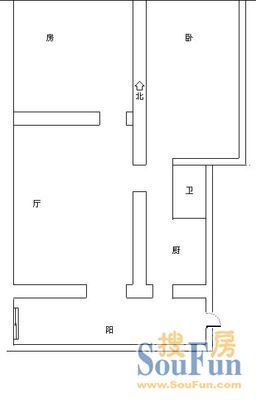
2室1厅1卫
户型
-
56㎡
建筑面积
买房加房产交流群,省钱不踩雷
3000+人正在热聊
加入群聊
-
单价
3571元/平米
- 挂牌价格解析
-
楼层
顶层/4层
- 咨询楼层
-
套内
暂无数据
- 咨询套内使用面积
-
朝向
南北
-
发布
2026-01-19
-
咨询总首付
首付约9.2万
首付税费及佣金情况 -
深度测评
小区南莲路水电工程局宿舍(青云谱-城南)
-
更多
楼户比、楼层高度、交易历史、抵押信息
业主自评
-
阿群
加入房天下2395天
接电时间:09:00-22:00
小区环境,有门卫,小区内有食堂有停车场,三店,民德旁。房屋南北通透,阳光充沛。
小区环境,有门卫,小区内有食堂有停车场,三店,民德旁。房屋南北通透,阳光充沛。
周边配套
地址:南莲路76号
交通综合评分
查看全部2.0
“一般”
超过南昌42.0%的小区
-
地铁公交
5.0
本月均价 8311元/m²
环比上月 上涨 0.01%
同比去年 下跌 27.55%
猜你喜欢
同小区其它房源
户型齐全,主打户型方正,明卫,明厨,客厅朝南,全明格局,双卧朝南二居
南莲路水电工程局宿舍户型主要有49平-74平的户型方正,明卫,明厨,客厅朝南,全明格局,双卧朝南的二居 。
*获取完整户型报告,同时会有免费语音讲解服务
-
7764元/㎡
本月挂牌均价
-
0.48%
环比上月
买房加房产交流群,省钱不踩雷
3000+人正在热聊
加入群聊
联系业主
免责声明:房源信息由网站用户提供,其真实性、合法性由信息提供者负责,最终以政府部门登记备案为准。本网站不声明或保证内容之正确性和可靠性,购买该房屋时,请谨慎核查。入学情况仅凭历史经验总结,在此不承诺升学事宜。请您在签订合同之前,切勿支付任何形式的费用,以免上当受骗。

