绿地中央公园3室2厅2卫南北朝向120.00万元出售
-
120万元
总价
-
3室2厅2卫
户型
-
99.8㎡
建筑面积
买房加房产交流群,省钱不踩雷
3000+人正在热聊
加入群聊
-
单价
12024元/平米
- 挂牌价格解析
-
楼层
低层/32层
- 咨询楼层
-
套内
暂无数据
- 咨询套内使用面积
-
朝向
南北
-
年代
2019
-
发布
2025-02-23
-
地铁
暂无数据
-
咨询总首付
首付约52.8万
首付税费及佣金情况 -
深度测评
小区绿地中央公园(新建-长堎)
-
更多
楼户比、楼层高度、交易历史、抵押信息
业主自评
-
esf-seco488498
加入房天下4022天
接电时间:09:00-22:00
周边配套
地址:文化大道(万达广场旁)
交通综合评分
查看全部3.6
“一般”
超过南昌48.0%的小区
-
地铁公交
9.0
本月均价 13793元/m²
环比上月 下跌 1.4%
同比去年 下跌 11.84%
猜你喜欢
同小区其它房源
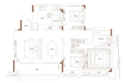
户型齐全,主打全明格局,户型方正三居
绿地中央公园户型主要有99平-136平的全明格局,户型方正的三居 、136平-200平的南北通透,全明格局的四居 、45平-47平的全明格局,户型方正的一居 。
*获取完整户型报告,同时会有免费语音讲解服务
-
7915元/㎡
本月挂牌均价
-
0.86%
环比上月
买房加房产交流群,省钱不踩雷
3000+人正在热聊
加入群聊
联系业主
免责声明:房源信息由网站用户提供,其真实性、合法性由信息提供者负责,最终以政府部门登记备案为准。本网站不声明或保证内容之正确性和可靠性,购买该房屋时,请谨慎核查。入学情况仅凭历史经验总结,在此不承诺升学事宜。请您在签订合同之前,切勿支付任何形式的费用,以免上当受骗。

