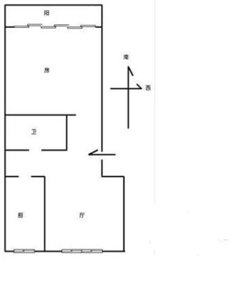
三里亭·三里家园**区·1室·1厅
-
131万
总价
-
1室1厅1卫
户型
-
54.6㎡
建筑面积
买房加房产交流群,省钱不踩雷
3000+人正在热聊
加入群聊
-
单价
23993元/平米
- 挂牌价格解析
-
楼层
低楼层/6层
- 咨询楼层
-
套内
暂无数据
- 咨询套内使用面积
-
楼型
板楼
-
朝向
南
-
装修
简装
-
年代
2008
-
发布
2025-11-04
-
咨询总首付
首付约38.1万
首付税费及佣金情况 -
深度测评
小区三里家园三区(上城-三里亭)
-
更多
楼户比、楼层高度、交易历史、抵押信息
-
核验码
251031JP537647
周边配套
地址:江干区三里亭尧典桥路与池塘庙路交叉口
交通综合评分
查看全部7.3
“较好”
超过杭州41.8%的小区
-
地铁公交
10.0
-
驾车出行
7.0
-
城际交通
4.0
本月均价 25695元/m²
环比上月 下跌 2.4%
同比去年 下跌 10.73%
猜你喜欢
同小区其它房源
户型齐全,主打明厨,主卧朝南二居
三里家园三区户型主要有54平-160平的明厨,主卧朝南的二居 、81平-137平的户型方正,明厨,明卫,客厅朝南的三居 、44平-53平的户型方正,明卫,明厨,客厅朝南的一居 。
*获取完整户型报告,同时会有免费语音讲解服务
-
29047元/㎡
本月挂牌均价
-
0.59%
环比上月
买房加房产交流群,省钱不踩雷
3000+人正在热聊
加入群聊
免责声明:房源信息由网站用户提供,其真实性、合法性由信息提供者负责,最终以政府部门登记备案为准。本网站不声明或保证内容之正确性和可靠性,购买该房屋时,请谨慎核查。入学情况仅凭历史经验总结,在此不承诺升学事宜。请您在签订合同之前,切勿支付任何形式的费用,以免上当受骗。



