清波新村3房送大院子60方多,送储藏室18个平方两间。
-
838万
总价
-
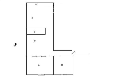
2室2厅2卫
户型
-
77.96㎡
建筑面积
买房加房产交流群,省钱不踩雷
3000+人正在热聊
加入群聊
-
单价
107491元/平米
- 挂牌价格解析
-
楼层
低楼层/6层
- 咨询楼层
-
套内
暂无数据
- 咨询套内使用面积
-
楼型
塔楼
-
朝向
南北
-
装修
精装
-
年代
1978
-
发布
2022-09-20
-
咨询总首付
首付约240.1万
首付税费及佣金情况 -
深度测评
小区清波新村(上城-清波)
-
更多
楼户比、楼层高度、交易历史、抵押信息
-
核验码
190804762460
房源描述(1)
周边配套
地址:南山路清波路口
交通综合评分
查看全部5.3
“一般”
超过杭州45.0%的小区
-
地铁公交
10.0
-
城际交通
4.5
本月均价 63179元/m²
环比上月 上涨 2.42%
同比去年 上涨 3.64%
猜你喜欢
同小区其它房源
户型齐全,主打明厨,明卫,客厅朝南,全明格局,双卧朝南二居
清波新村户型主要有50平-81平的明厨,明卫,客厅朝南,全明格局,双卧朝南的二居 、35平-46平的户型方正,明卫,明厨的一居 。
*获取完整户型报告,同时会有免费语音讲解服务
-
56536元/㎡
本月挂牌均价
-
0.81%
环比上月
买房加房产交流群,省钱不踩雷
3000+人正在热聊
加入群聊
- 免费咨询
- 专业服务
- 区域解读
- 户型分析
免责声明:房源信息由网站用户提供,其真实性、合法性由信息提供者负责,最终以政府部门登记备案为准。本网站不声明或保证内容之正确性和可靠性,购买该房屋时,请谨慎核查。入学情况仅凭历史经验总结,在此不承诺升学事宜。请您在签订合同之前,切勿支付任何形式的费用,以免上当受骗。


