大关低总价一居室,看房方便诚心出售
-
93万
总价
-
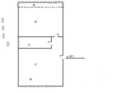
1室1卫
户型
-
38.02㎡
建筑面积
买房加房产交流群,省钱不踩雷
3000+人正在热聊
加入群聊
-
单价
24461元/平米
- 挂牌价格解析
-
楼层
高楼层/7层
- 咨询楼层
-
套内
暂无数据
- 咨询套内使用面积
-
楼型
板楼
-
朝向
南
-
装修
毛坯
-
供暖
自供暖
-
年代
1998
-
发布
2020-07-30
-
咨询总首付
首付约26.8万
首付税费及佣金情况 -
深度测评
小区大关南六苑(拱墅-大关)
-
更多
楼户比、楼层高度、交易历史、抵押信息
-
核验码
200831DE556110
周边配套
地址:德苑路44号
交通综合评分
查看全部5.3
“一般”
超过杭州90.8%的小区
-
地铁公交
10.0
-
城际交通
4.5
本月均价 24834元/m²
环比上月 下跌 0.33%
同比去年 下跌 6.43%
猜你喜欢
同小区其它房源
户型齐全,主打户型方正,明厨,客厅朝南,主卧朝南二居
大关南六苑户型主要有46平-77平的户型方正,明厨,客厅朝南,主卧朝南的二居 、68平-83平的户型方正,明卫,明厨,主卧朝南的三居 、44平-78平的户型方正,明卫,主卧朝南的一居 。
*获取完整户型报告,同时会有免费语音讲解服务
-
26939元/㎡
本月挂牌均价
-
0.71%
环比上月
买房加房产交流群,省钱不踩雷
3000+人正在热聊
加入群聊
免责声明:房源信息由网站用户提供,其真实性、合法性由信息提供者负责,最终以政府部门登记备案为准。本网站不声明或保证内容之正确性和可靠性,购买该房屋时,请谨慎核查。入学情况仅凭历史经验总结,在此不承诺升学事宜。请您在签订合同之前,切勿支付任何形式的费用,以免上当受骗。



