银杏汇,网红壕宅,一线江景,中间楼层,自住精装
-
4300万
总价
-
5室2厅
户型
-
372.49㎡
建筑面积
买房加房产交流群,省钱不踩雷
3000+人正在热聊
加入群聊
-
单价
115439元/平米
- 挂牌价格解析
-
楼层
中层/41层
- 咨询楼层
-
套内
370.49㎡
- 咨询套内使用面积
-
楼型
板楼
-
朝向
南
-
装修
精装修
-
年代
2014
-
发布
2025-11-05
-
地铁
距4号线联庄站约523米
-
咨询总首付
首付约1459.4万
首付税费及佣金情况 -
深度测评
小区银杏汇(滨江-浦沿)
-
更多
楼户比、楼层高度、交易历史、抵押信息
-
核验码
103145179436
房源描述(1)
周边配套
地址:滨江区闻涛路与东信大道交叉口向西600米杭州钱塘湾艺术馆
交通综合评分
查看全部5.2
“一般”
超过杭州12.7%的小区
-
地铁公交
10.0
-
城际交通
4.0
本月均价 113882元/m²
环比上月 上涨 1.33%
同比去年 上涨 39.47%
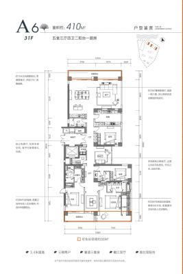
户型齐全,主打明厨,主卧朝南四居
银杏汇户型主要有203平-410平的明厨,主卧朝南的四居 、306平-410平的独立电梯,主卧带卫,主卧朝南,带衣帽间,双阳台,卧室带阳台的五居 、89平-90平的户型方正,独立衣帽间,明厨,明卫,主卧朝南的三居 。
*获取完整户型报告,同时会有免费语音讲解服务
-
35570元/㎡
本月挂牌均价
-
0.01%
环比上月
买房加房产交流群,省钱不踩雷
3000+人正在热聊
加入群聊
- 免费咨询
- 专业服务
- 区域解读
- 户型分析
免责声明:房源信息由网站用户提供,其真实性、合法性由信息提供者负责,最终以政府部门登记备案为准。本网站不声明或保证内容之正确性和可靠性,购买该房屋时,请谨慎核查。入学情况仅凭历史经验总结,在此不承诺升学事宜。请您在签订合同之前,切勿支付任何形式的费用,以免上当受骗。


