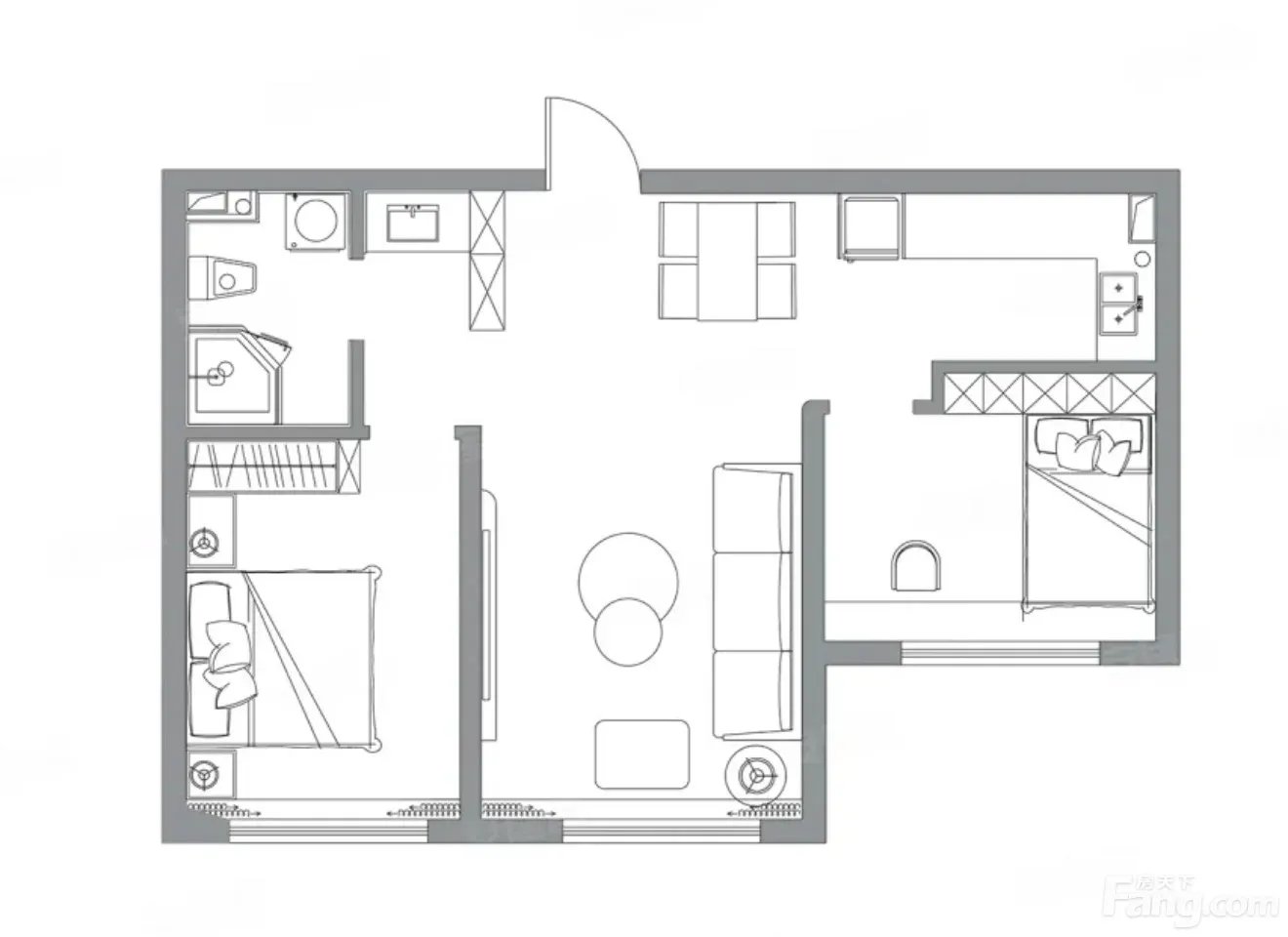
呼兰 华居水木天成 2室1厅 81.00㎡ 67万
-
67万元
总价
-
2室1厅1卫
户型
-
81㎡
建筑面积
买房加房产交流群,省钱不踩雷
3000+人正在热聊
加入群聊
-
单价
8272元/平米
- 挂牌价格解析
-
楼层
高层/33层
- 咨询楼层
-
套内
暂无数据
- 咨询套内使用面积
-
朝向
南
-
年代
2020
-
发布
2025-11-05
-
深度测评
小区华居水木天成(呼兰-大学城)
-
更多
楼户比、楼层高度、交易历史、抵押信息
业主自评
-
可口可乐
加入房天下3189天
接电时间:09:00-22:00
周边配套
地址:杉杉路师范大学东侧
本月均价 8250元/m²
环比上月 上涨 0.26%
同比去年 下跌 7.31%
猜你喜欢
同小区其它房源
户型齐全,主打南北通透,动静分离二居
华居水木天成户型主要有85平-101平的南北通透,动静分离的二居 、111平-150平的采光充足,厨卫不对门的三居 、49平-81平的户型方正,采光充足的一居 。
*获取完整户型报告,同时会有免费语音讲解服务
买房加房产交流群,省钱不踩雷
3000+人正在热聊
加入群聊
联系业主
免责声明:房源信息由网站用户提供,其真实性、合法性由信息提供者负责,最终以政府部门登记备案为准。本网站不声明或保证内容之正确性和可靠性,购买该房屋时,请谨慎核查。入学情况仅凭历史经验总结,在此不承诺升学事宜。请您在签订合同之前,切勿支付任何形式的费用,以免上当受骗。

