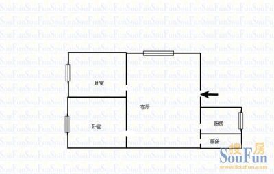
房子格局方正采光通透,无遮挡。
-
40万
总价
-
2室1厅
户型
-
95.06㎡
建筑面积
买房加房产交流群,省钱不踩雷
3000+人正在热聊
加入群聊
-
单价
4208元/平米
- 挂牌价格解析
-
楼层
高楼层/7层
- 咨询楼层
-
套内
暂无数据
- 咨询套内使用面积
-
楼型
板塔结合
-
朝向
东南
-
装修
精装
-
供暖
自供暖
-
发布
2025-09-19
-
地铁
距1号线沙冲路站约660米
-
深度测评
小区立恒花园(南明-军区)
-
更多
楼户比、楼层高度、交易历史、抵押信息
周边配套
地址:南明区朝阳洞路85号
交通综合评分
查看全部4.0
“一般”
超过贵阳54.2%的小区
-
地铁公交
10.0
本月均价 4256元/m²
环比上月 下跌 1.69%
同比去年 下跌 23.71%
猜你喜欢
同小区其它房源
户型齐全,主打户型方正,明卫,明厨,客厅朝南,全明格局二居
立恒花园户型主要有61平-95平的户型方正,明卫,明厨,客厅朝南,全明格局的二居 、82平-111平的户型方正,明卫,客厅朝南的三居 、75平-136平的明卫,明厨,客厅朝南,全明格局的四居 。
*获取完整户型报告,同时会有免费语音讲解服务
买房加房产交流群,省钱不踩雷
3000+人正在热聊
加入群聊
免责声明:房源信息由网站用户提供,其真实性、合法性由信息提供者负责,最终以政府部门登记备案为准。本网站不声明或保证内容之正确性和可靠性,购买该房屋时,请谨慎核查。入学情况仅凭历史经验总结,在此不承诺升学事宜。请您在签订合同之前,切勿支付任何形式的费用,以免上当受骗。



