阅山湖联排中户别墅,业主诚心出售
-
309万
总价
-
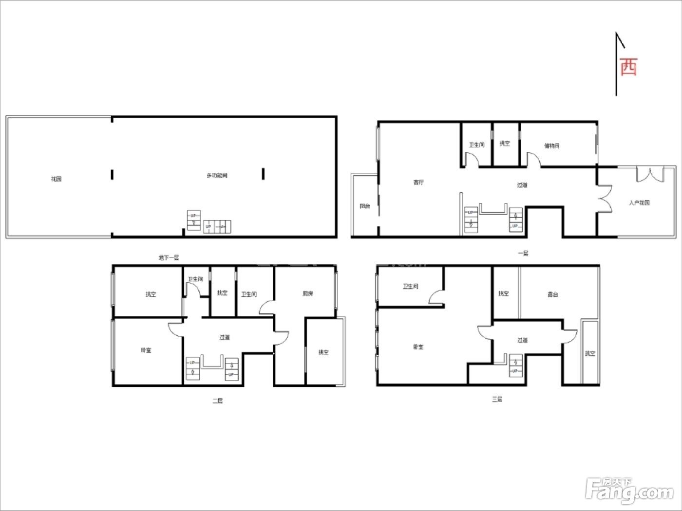
5室2厅3卫
户型
-
174.24㎡
建筑面积
买房加房产交流群,省钱不踩雷
3000+人正在热聊
-
单价
17734元/平米
- 挂牌价格解析
-
楼层
底层/4层
- 咨询楼层
-
套内
173.24㎡
- 咨询套内使用面积
-
楼型
砖楼
-
朝向
南北
-
装修
毛坯
-
年代
2000
-
发布
2026-02-04
-
地铁
距1号线阅山湖公园站约816米
-
深度测评
小区中铁阅山湖(观山湖-阅山湖)
-
更多
楼户比、楼层高度、交易历史、抵押信息
房源描述(1)
-
核心卖点问经纪人
1、小区环境幽雅,看花园位置安静。 2、户型方正、装修保养得当,看房方便看中价格可谈。 3、出入地铁公交方便,银行、大型超市,近中。 4、成熟小区,购物/休闲/娱乐/生活配套齐全。
-
业主心态问经纪人
房东置换,诚心出售,欢迎看房,随时恭候您的到来!
-
小区配套问经纪人
小区地理位置好,配套设施齐全,交通便利,居民素质高。
-
服务介绍问经纪人
本人做房产多年,一直本着专业的房产知识,为您服务,我会在短的时间内帮您买好满意的房子,不让您错失任何好房子,更不让您每天为买房的事烦心,欢迎随时拨打我电话。
-
税费分析房贷计算
产权干净,税费清晰,欢迎来电咨询该房屋详情,静候您的来电!
-
户型解读问经纪人
房屋户型方正,景观布局合理,设计实用,空间舒适,格局优越,采光通风良好
周边配套
交通综合评分
查看全部超过贵阳1.8%的小区
-
地铁公交
10.0
-
驾车出行
9.0
本月均价 10536元/m²
环比上月 下跌 0.05%
同比去年 下跌 2.6%
猜你喜欢
同小区其它房源
户型齐全,主打户型方正,三开间朝南,L型厨房四居
中铁阅山湖户型主要有121平-300平的户型方正,三开间朝南,L型厨房的四居 、112平-133平的采光充足,主卧带卫,干湿分离,大面宽阳台的三居 、261平-270平的挑高客厅,独立玄关,主卧带卫的五居 。
*获取完整户型报告,同时会有免费语音讲解服务
买房加房产交流群,省钱不踩雷
3000+人正在热聊
- 免费咨询
- 专业服务
- 区域解读
- 户型分析

