在家看闽江之心电梯高层采光通风好阳台大
-
132万
总价
-
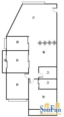
3室2厅
户型
-
87.16㎡
建筑面积
买房加房产交流群,省钱不踩雷
3000+人正在热聊
加入群聊
-
单价
15145元/平米
- 挂牌价格解析
-
楼层
高楼层/19层
- 咨询楼层
-
套内
70.33㎡
- 咨询套内使用面积
-
楼型
板楼
-
朝向
南北
-
装修
简装
-
供暖
暂无数据
-
发布
2024-04-10
-
地铁
距1号线达道站约562米
-
咨询总首付
首付约39.4万
首付税费及佣金情况 -
深度测评
小区安平小区(台江-台江路)
-
更多
楼户比、楼层高度、交易历史、抵押信息
周边配套
地址:新玉环路81号五一南路与新玉环路交叉处
交通综合评分
查看全部4.0
“一般”
超过福州99.3%的小区
-
地铁公交
10.0
本月均价 16087元/m²
环比上月 下跌 0.99%
同比去年 下跌 9.22%
猜你喜欢
同小区其它房源
户型齐全,主打户型方正,明厨,明卫,客厅朝南二居
安平小区户型主要有49平-87平的户型方正,明厨,明卫,客厅朝南的二居 、96平-125平的户型方正,明厨的三居 、49平-51平的户型方正,明卫,明厨的一居 。
*获取完整户型报告,同时会有免费语音讲解服务
-
17002元/㎡
本月挂牌均价
-
1.28%
环比上月
买房加房产交流群,省钱不踩雷
3000+人正在热聊
加入群聊
免责声明:房源信息由网站用户提供,其真实性、合法性由信息提供者负责,最终以政府部门登记备案为准。本网站不声明或保证内容之正确性和可靠性,购买该房屋时,请谨慎核查。入学情况仅凭历史经验总结,在此不承诺升学事宜。请您在签订合同之前,切勿支付任何形式的费用,以免上当受骗。



