汇银新港湾刚需2房 拎包入住 业主急售 密码随时可看
-
48万
总价
-
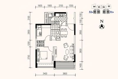
2室1厅
户型
-
61.18㎡
建筑面积
买房加房产交流群,省钱不踩雷
3000+人正在热聊
加入群聊
-
单价
7846元/平米
- 挂牌价格解析
-
楼层
高楼层/31层
- 咨询楼层
-
套内
43.97㎡
- 咨询套内使用面积
-
楼型
塔楼
-
朝向
北
-
装修
精装
-
供暖
暂无数据
-
发布
2025-11-04
-
地铁
暂无数据
-
深度测评
小区汇银W新港湾(禅城-季华路)
-
更多
楼户比、楼层高度、交易历史、抵押信息
周边配套
地址:南庄大道东220号(石南大桥南)
交通综合评分
查看全部3.2
“一般”
超过佛山65.4%的小区
-
地铁公交
8.0
本月均价 10138元/m²
环比上月 下跌 4.26%
同比去年 下跌 17.32%
猜你喜欢
同小区其它房源
买房加房产交流群,省钱不踩雷
3000+人正在热聊
加入群聊
免责声明:房源信息由网站用户提供,其真实性、合法性由信息提供者负责,最终以政府部门登记备案为准。本网站不声明或保证内容之正确性和可靠性,购买该房屋时,请谨慎核查。入学情况仅凭历史经验总结,在此不承诺升学事宜。请您在签订合同之前,切勿支付任何形式的费用,以免上当受骗。



