精装修4房,拎包可以入住,近地铁口
-
198万
总价
-
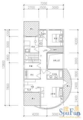
4室2厅
户型
-
119.19㎡
建筑面积
-
单价
16613元/平米
- 挂牌价格解析
-
楼层
高楼层/15层
- 咨询楼层
-
套内
暂无数据
- 咨询套内使用面积
-
楼型
板塔结合
-
朝向
南
-
装修
其他
-
供暖
暂无数据
-
发布
2025-03-25
-
地铁
距1号线元美站约417米
-
咨询总首付
首付约86.9万
首付税费及佣金情况 -
深度测评
小区星鹏商务大厦(南城-东莞行政中心区)
-
更多
楼户比、楼层高度、交易历史、抵押信息
周边配套
地址:东莞市南城鸿福路与东莞大道交汇处
交通综合评分
查看全部4.0
“一般”
超过东莞17.2%的小区
-
地铁公交
10.0
本月均价 13496元/m²
环比上月 上涨 19.82%
同比去年 下跌 4.49%
猜你喜欢
同小区其它房源
-
14226元/㎡
本月挂牌均价
-
0.14%
环比上月
免责声明:房源信息由网站用户提供,其真实性、合法性由信息提供者负责,最终以政府部门登记备案为准。本网站不声明或保证内容之正确性和可靠性,购买该房屋时,请谨慎核查。入学情况仅凭历史经验总结,在此不承诺升学事宜。请您在签订合同之前,切勿支付任何形式的费用,以免上当受骗。



