哇!拎包即住的临江大别墅999W诚售,朝南大花园瞰江别墅!
-
999万
总价
-
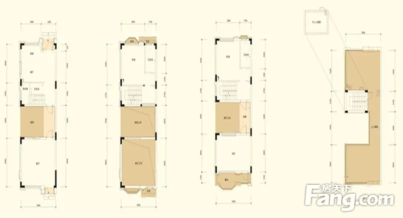
6室3厅3卫
户型
-
178㎡
建筑面积
-
单价
56124元/平米
- 挂牌价格解析
-
楼层
4层
- 咨询楼层
-
套内
173.66㎡
- 咨询套内使用面积
-
楼型
双拼
-
朝向
南
-
装修
豪华装修
-
发布
2025-11-13
-
地铁
暂无数据
-
咨询总首付
首付约440.7万
首付税费及佣金情况 -
深度测评
小区新世纪君汇半岛别墅(道滘-道滘)
-
更多
楼户比、楼层高度、交易历史、抵押信息
房源描述(1)
周边配套
地址:东莞大道与港口大道交界
交通综合评分
查看全部7.0
“较好”
超过东莞20.3%的小区
-
地铁公交
10.0
-
驾车出行
10.0
猜你喜欢
同小区其它房源
-
14424元/㎡
本月挂牌均价
-
1.17%
环比上月
- 免费咨询
- 专业服务
- 区域解读
- 户型分析
免责声明:房源信息由网站用户提供,其真实性、合法性由信息提供者负责,最终以政府部门登记备案为准。本网站不声明或保证内容之正确性和可靠性,购买该房屋时,请谨慎核查。入学情况仅凭历史经验总结,在此不承诺升学事宜。请您在签订合同之前,切勿支付任何形式的费用,以免上当受骗。


