市区叠加别墅 东南端头朝向 带35平米花园
-
258万
总价
-
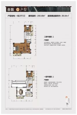
4室2厅
户型
-
213.11㎡
建筑面积
-
单价
12107元/平米
- 挂牌价格解析
-
楼层
4层
- 咨询楼层
-
套内
210.07㎡
- 咨询套内使用面积
-
楼型
板楼
-
朝向
东西
-
装修
其他
-
供暖
暂无数据
-
发布
2024-07-01
-
深度测评
小区十畝·大理生活(大理市-大理)
-
更多
楼户比、楼层高度、交易历史、抵押信息
周边配套
地址:下关环城南路小花园往快速客运站方向500米
交通综合评分
查看全部6.7
“较好”
超过大理34.2%的小区
-
地铁公交
10.0
-
驾车出行
9.0
猜你喜欢
同小区其它房源
户型齐全,主打南北通透,全明格局,户型方正,动静分离,高附赠空间,采光充足三居
十畝·大理生活户型主要有104平-262平的南北通透,全明格局,户型方正,动静分离,高附赠空间,采光充足的三居 、149平-384平的南北通透,全明格局,户型方正,采光充足的五居 、126平-213平的户型方正,采光充足的四居 。
*获取完整户型报告,同时会有免费语音讲解服务
免责声明:房源信息由网站用户提供,其真实性、合法性由信息提供者负责,最终以政府部门登记备案为准。本网站不声明或保证内容之正确性和可靠性,购买该房屋时,请谨慎核查。入学情况仅凭历史经验总结,在此不承诺升学事宜。请您在签订合同之前,切勿支付任何形式的费用,以免上当受骗。



