新北 尚枫澜湾 3室2厅
-
125万元
总价
-
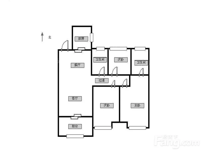
3室2厅1卫
户型
-
104.03㎡
建筑面积
买房加房产交流群,省钱不踩雷
3000+人正在热聊
加入群聊
-
单价
12016元/平米
- 挂牌价格解析
-
楼层
低层/30层
- 咨询楼层
-
套内
暂无数据
- 咨询套内使用面积
-
朝向
南
-
年代
2019
-
发布
2025-02-13
-
地铁
暂无数据
-
咨询总首付
首付约38.2万
首付税费及佣金情况 -
深度测评
小区尚枫澜湾(新北-三井华山)
-
更多
楼户比、楼层高度、交易历史、抵押信息
业主自评
-
梧桐知相惜
加入房天下2465天
接电时间:09:00-22:00
周边配套
地址:太湖路与华山路交汇处往南88米(龙城大道以北,藻江河以东)
交通综合评分
查看全部7.0
“较好”
超过常州37.8%的小区
-
地铁公交
10.0
-
驾车出行
10.0
本月均价 13315元/m²
环比上月 上涨 0.18%
同比去年 下跌 9.93%
猜你喜欢
同小区其它房源
户型齐全,主打户型方正,卧室朝南三居
尚枫澜湾户型主要有91平-114平的户型方正,卧室朝南的三居 、103平-107平的南北通透,主卧朝南的二居 、128平-139平的主卧带卫,双阳台,卧室带阳台的四居 。
*获取完整户型报告,同时会有免费语音讲解服务
-
12767元/㎡
本月挂牌均价
-
0.52%
环比上月
买房加房产交流群,省钱不踩雷
3000+人正在热聊
加入群聊
联系业主
免责声明:房源信息由网站用户提供,其真实性、合法性由信息提供者负责,最终以政府部门登记备案为准。本网站不声明或保证内容之正确性和可靠性,购买该房屋时,请谨慎核查。入学情况仅凭历史经验总结,在此不承诺升学事宜。请您在签订合同之前,切勿支付任何形式的费用,以免上当受骗。

