新上一套装修很好的三房拎包入住中间层
-
140万
总价
-
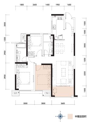
3室2厅2卫
户型
-
98.04㎡
建筑面积
买房加房产交流群,省钱不踩雷
3000+人正在热聊
加入群聊
-
单价
14280元/平米
- 挂牌价格解析
-
楼层
中楼层/33层
- 咨询楼层
-
套内
暂无数据
- 咨询套内使用面积
-
楼型
板塔结合
-
朝向
南
-
装修
精装
-
供暖
暂无数据
-
发布
2026-01-28
-
地铁
距4号线圭塘站约100米
-
咨询总首付
首付约30.4万
首付税费及佣金情况 -
深度测评
小区旭辉国际广场(雨花-武广新城)
-
更多
楼户比、楼层高度、交易历史、抵押信息
周边配套
地址:雨花区劳动东路与万家丽路交汇处东南角(中城丽景香山旁)
交通综合评分
查看全部8.3
“较好”
超过长沙19.2%的小区
-
地铁公交
10.0
-
驾车出行
10.0
-
城际交通
4.5
本月均价 12823元/m²
环比上月 下跌 1.4%
同比去年 下跌 9.48%
猜你喜欢
同小区其它房源
户型齐全,主打南北通透,主卧朝南三居
旭辉国际广场户型主要有96平-142平的南北通透,主卧朝南的三居 、41平-44平的户型方正,主卧朝南的一居 、83平-83平的户型方正,观景飘窗的二居 。
*获取完整户型报告,同时会有免费语音讲解服务
-
11108元/㎡
本月挂牌均价
-
0.8%
环比上月
买房加房产交流群,省钱不踩雷
3000+人正在热聊
加入群聊
免责声明:房源信息由网站用户提供,其真实性、合法性由信息提供者负责,最终以政府部门登记备案为准。本网站不声明或保证内容之正确性和可靠性,购买该房屋时,请谨慎核查。入学情况仅凭历史经验总结,在此不承诺升学事宜。请您在签订合同之前,切勿支付任何形式的费用,以免上当受骗。



