清水毛坯5居室+长郡双语+视野开阔+房本在手
-
285万
总价
-
5室2厅
户型
-
135.48㎡
建筑面积
买房加房产交流群,省钱不踩雷
3000+人正在热聊
加入群聊
-
单价
21037元/平米
- 挂牌价格解析
-
楼层
高楼层/33层
- 咨询楼层
-
套内
暂无数据
- 咨询套内使用面积
-
楼型
板楼
-
朝向
南北
-
装修
毛坯
-
供暖
暂无数据
-
发布
2024-03-21
-
地铁
暂无数据
-
咨询总首付
首付约45.9万
首付税费及佣金情况 -
深度测评
小区钰龙天下(岳麓-市政府)
-
更多
楼户比、楼层高度、交易历史、抵押信息
房源描述(1)
周边配套
地址:佑母塘路799号
交通综合评分
查看全部2.0
“一般”
超过长沙13.5%的小区
-
地铁公交
5.0
本月均价 22234元/m²
环比上月 下跌 1.52%
同比去年 下跌 12.53%
猜你喜欢
同小区其它房源
户型齐全,主打明卫,双阳台,主卧朝南三居
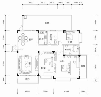
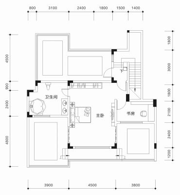
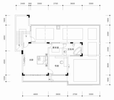
钰龙天下户型主要有88平-159平的明卫,双阳台,主卧朝南的三居 、66平-117平的全明格局,户型方正的二居 、135平-219平的明卫,主卧朝南的四居 。
*获取完整户型报告,同时会有免费语音讲解服务
-
11759元/㎡
本月挂牌均价
-
1.17%
环比上月
买房加房产交流群,省钱不踩雷
3000+人正在热聊
加入群聊
- 免费咨询
- 专业服务
- 区域解读
- 户型分析
免责声明:房源信息由网站用户提供,其真实性、合法性由信息提供者负责,最终以政府部门登记备案为准。本网站不声明或保证内容之正确性和可靠性,购买该房屋时,请谨慎核查。入学情况仅凭历史经验总结,在此不承诺升学事宜。请您在签订合同之前,切勿支付任何形式的费用,以免上当受骗。


