洋湖湿地公园边 绿城品质大盘丨地铁口丨准现房丨品质大盘
-
180.88万
总价
-
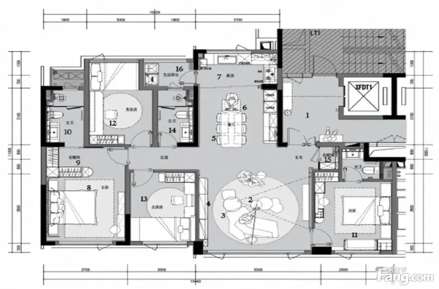
4室2厅3卫
户型
-
142㎡
建筑面积
买房加房产交流群,省钱不踩雷
3000+人正在热聊
加入群聊
-
单价
12738元/平米
- 挂牌价格解析
-
楼层
中层/26层
- 咨询楼层
-
套内
暂无数据
- 咨询套内使用面积
-
楼型
板楼
-
朝向
南
-
装修
毛坯
-
年代
2025
-
发布
2026-01-07
-
地铁
距3号线洋湖湿地站约877米
-
咨询总首付
首付约34.2万
首付税费及佣金情况 -
深度测评
小区绿城玉海棠(岳麓-洋湖湿地公园)
-
更多
楼户比、楼层高度、交易历史、抵押信息
房源描述(1)
-
核心卖点问经纪人
1、小于等于90平米且为家庭首套住房:契税的税率为1%,大于90平米且为家庭首套住房:契税的税率为1.5%2、家庭二套及以上住房:契税的税率为4%,二套及以上住房需要缴纳的契税为计税价格(即房款)的百分之四。新房: 房税费首套房契税1至3个点。维修基金60元一平方物业费2元到3元一平方。别墅商铺另算 购买新房主要税费: 契税:90平以内:1% ;90-124 平收1.5%;124平以上收2%(交房后地税收取)房屋维修资金:建筑面积x60元/平燃气入户开通费:免费 房屋产权工本费300远注:以上收费仅供参考,均以政府相关部门和开发商规定为准
-
业主心态问经纪人
房东置换,诚心出售,价格可以再谈,欢迎看房,随时恭候。
-
小区配套问经纪人
位置:小区地理位置佳,绿化率高,居民素质高 配套:有健身器材,小型篮球场,可供小区居民使用 车位:停车位充足,建有地上停车场和地下车库 保安:小区内24保安巡逻
-
服务介绍问经纪人
本人从事房地产多年,公司有大量好房源,欢迎进入我的店铺查看,欢迎随时电话咨询,相信我的专业,为您置业安家保驾护航。
周边配套
地址:潭州大道与景园路交汇处(向西100米)
-
11575元/㎡
本月挂牌均价
-
1.18%
环比上月
买房加房产交流群,省钱不踩雷
3000+人正在热聊
加入群聊
- 免费咨询
- 专业服务
- 区域解读
- 户型分析
免责声明:房源信息由网站用户提供,其真实性、合法性由信息提供者负责,最终以政府部门登记备案为准。本网站不声明或保证内容之正确性和可靠性,购买该房屋时,请谨慎核查。入学情况仅凭历史经验总结,在此不承诺升学事宜。请您在签订合同之前,切勿支付任何形式的费用,以免上当受骗。


