新上!花园一亩临湖套内400平全新装修独栋!
-
818万
总价
-
5室2厅5卫
户型
-
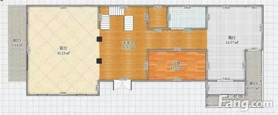
293㎡
建筑面积
买房加房产交流群,省钱不踩雷
3000+人正在热聊
-
单价
27918元/平米
- 挂牌价格解析
-
楼层
底层/1层
- 咨询楼层
-
套内
暂无数据
- 咨询套内使用面积
-
楼型
板楼
-
朝向
南北
-
装修
精装修
-
年代
2009
-
发布
2025-06-07
-
地铁
暂无数据
-
咨询总首付
首付约190.6万
首付税费及佣金情况 -
深度测评
小区碧桂园威尼斯城(星沙-松雅湖)
-
更多
楼户比、楼层高度、交易历史、抵押信息
房源描述(1)
-
核心卖点问经纪人
【小区户型】小区联排户型有225、241、286平.独栋是384、505、576平户型,总价从300-1200万不等 【小区设施】小区自带花园,凉亭,各个区有内湖,自带高等私立 ,五级酒店,大型超市 【房屋品质】小区早开盘时间为2006年,主要以独栋别墅,联排,双拼别墅,洋房为主,小区整体建筑风格偏欧式。 【生活配套】小区门口200米有 ,酒占,超市。小区1.5公里星沙地铁三号线星沙站,易初莲花,通程广场,万象汇。 【附近 】小区南门口自带小区 与私立 ,碧桂园中英文 ,十二年制对外留学 。
-
业主心态问经纪人
51业主诚心出售,产权清晰,诚心出售,随时 看房。 2房东的产权资料齐全,我们公司有备份。 3您的时间就是生命,我们团队只做高效正确的事情。 4.每套出售房源我们都会到现场勘查。5房东诚心出售,只等同为诚心的您。
-
小区配套问经纪人
位置:小区地理位置佳,绿化率高,居民素质高 配套:有健身器材,小型篮球场,可供小区居民使用 车位:停车位充足,建有地上停车场和地下车库 保安:小区内24保安巡逻
-
服务介绍问经纪人
本人从事房地产多年,公司有大量好房源,欢迎进入我的店铺查看,欢迎随时电话咨询,相信我的专业,为您置业安家保驾护航。
周边配套
交通综合评分
查看全部超过长沙96.3%的小区
-
地铁公交
5.0
-
驾车出行
10.0
本月均价 6180元/m²
环比上月 下跌 2.82%
同比去年 下跌 14.12%
猜你喜欢
同小区其它房源
-
7192元/㎡
本月挂牌均价
-
5.23%
环比上月
买房加房产交流群,省钱不踩雷
3000+人正在热聊
- 免费咨询
- 专业服务
- 区域解读
- 户型分析

