省植物园南城 长房国企 7字头准现房 配套入读雅礼实验+初中
-
110万
总价
-
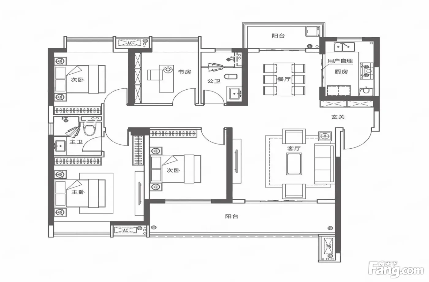
4室2厅2卫
户型
-
140.73㎡
建筑面积
买房加房产交流群,省钱不踩雷
3000+人正在热聊
-
单价
7816元/平米
- 挂牌价格解析
-
楼层
中层/28层
- 咨询楼层
-
套内
暂无数据
- 咨询套内使用面积
-
楼型
板楼
-
朝向
南
-
装修
毛坯
-
年代
2022
-
发布
2025-04-24
-
地铁
暂无数据
-
咨询总首付
首付约19.1万
首付税费及佣金情况 -
深度测评
小区长房·岭秀时代(雨花-省植物园)
-
更多
楼户比、楼层高度、交易历史、抵押信息
房源描述(1)
-
核心卖点问经纪人
项目基本信息 总占地面积:212360㎡ 总建筑面积:681388㎡ 项目分为南北两个地块,共40栋住宅 总户数:3866户 容积率:2.83(南地块2.29,北地块3.37) 绿化率:40% 车位:4084个(1:1.06) 交付标准:毛坯 物业费:2.4元/㎡ 建筑类别:小高层、高层、洋房 物业公司:长房物业管理有限公司(国家一级资质) 高层建面约115-139平高层,均价10500元/㎡;两梯四户,总层31层。 大平层建面约183平。两梯两户纯板五房。均价11500/㎡。总楼层17楼。带20平阔景阳台,动静分区。E12栋已加推,115-160平,均价11000元/平。 15. 交付时间:2025年12月交房。
-
业主心态问经纪人
房东置换,诚心出售,价格可以再谈,欢迎看房,随时恭候。
-
小区配套问经纪人
位置:小区地理位置佳,绿化率高,居民素质高 配套:有健身器材,小型篮球场,可供小区居民使用 车位:停车位充足,建有地上停车场和地下车库 保安:小区内24保安巡逻
-
服务介绍问经纪人
本人从事房地产多年,公司有大量好房源,欢迎进入我的店铺查看,欢迎随时电话咨询,相信我的专业,为您置业安家保驾护航。
-
税费分析房贷计算
房税费首套房契税1至4个点。 维修基金120元一平方 物业费2元到3元一平方。别墅商铺另算 温馨提醒:购房按揭所需材料: 1 夫妻双方身份证原件与复印件2夫妻双方半年流水 3原件复印件 4工资证明(不同银行版本不一样)购买新房主要税费: 契税:90以下-140平以内收1%;140平以上收1.5%(交房后地税收取) 房屋维修资金:建筑面积x60元/平 燃气入户开通费:免费 房屋产权工本费300远 注:以上收费仅供参考,均以政府相关部门和开发商终规定为准
-
户型解读问经纪人
项目位于武广板块、省府红星、天际岭三大板块交界的核心位置,既享受好的政策,又享优质资源尽揽区域的交通、配套、生态等发展红利。项目北面无缝拥揽河东片区的森林公园,140公顷的天际岭森林公园拥有超过3800多种的植物,建有亚热带的珍稀濒危植物保护区森林,覆盖率高达90%,是城市中非常稀缺的高负氧地区。 其次项目北接城市会客厅武广板块,定位为综合交通枢纽集地铁,高铁,高速航空等交通方式为一体汇聚庞大的客流,凭借虹吸效应拉开了城市未来发展的空间,依托高铁经济与会展经济作为发展引擎,成为长沙重点打造的高铁国际CBD商务区。
周边配套
交通综合评分
查看全部超过长沙10.8%的小区
-
地铁公交
5.0
-
驾车出行
10.0
本月均价 10313元/m²
环比上月 上涨 1.5%
同比去年 下跌 11.44%
猜你喜欢
同小区其它房源
户型齐全,主打南北通透,全明格局四居
长房·岭秀时代户型主要有134平-201平的南北通透,全明格局的四居 、155平-231平的全明格局,户型方正的五居 、114平-117平的南北通透,全明格局的三居 。
*获取完整户型报告,同时会有免费语音讲解服务
-
10420元/㎡
本月挂牌均价
-
0.57%
环比上月
买房加房产交流群,省钱不踩雷
3000+人正在热聊
- 免费咨询
- 专业服务
- 区域解读
- 户型分析


