鸳鸯龙湖蓝湖郡东岸四房999万
-
999万
总价
-
4室3厅6卫
户型
-
257.17㎡
建筑面积
买房加房产交流群,省钱不踩雷
3000+人正在热聊
-
单价
38845元/平米
- 挂牌价格解析
-
楼层
1层
- 咨询楼层
-
套内
248.71㎡
- 咨询套内使用面积
-
朝向
西南
-
装修
中装修
-
年代
2007
-
发布
2026-03-31
-
咨询总首付
首付约331.8万
首付税费及佣金情况 -
深度测评
小区龙湖蓝湖郡东岸(两江新区-鸳鸯)
-
更多
楼户比、楼层高度、交易历史、抵押信息
房源描述(1)
-
核心卖点问经纪人
相信为您推荐的这套房子您一定会满意,赶快行动吧,先到先得! 房屋年代∶null,面积∶257.17平方米,朝向∶ 1. 小区配备高端物业管理,让你享受宾至如归的服务; 2. 小区人文素质高,是您的居家的绝佳选择; 3. 小区居住安静舒适,让您拥有高品质的生活环境; 4. 小区绿化率高,绿树成荫鸟语花香让您随时呼吸到新鲜空气。
-
业主心态问经纪人
房东诚心出售,看房方便;宽敞明亮,舒服;小区周边交通便利,生活配套设施齐全,生活便利!
-
小区配套问经纪人
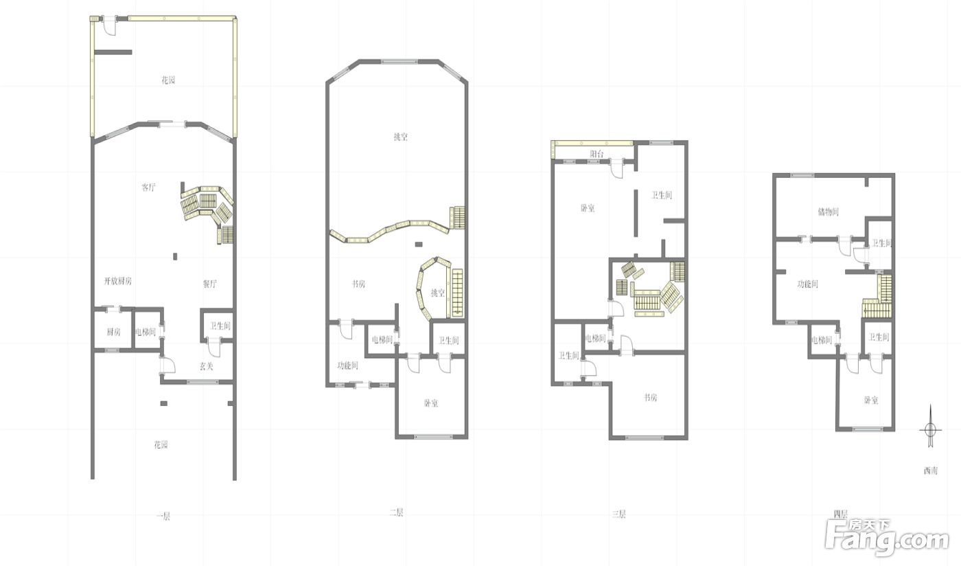
1、小区物业管理严格,服务到家让你生活放心。 2、小区人文素质高,是您居住的佳所。 3、小区居住安静舒适,让您居住并享受高品质的生活。 4、小区绿化率高达,绿树成荫鸟语花香让您随时呼吸到新鲜空气。 5、本小区是花园洋房加别墅,密度低,绿树成荫,环境宜人,适合居家。 户型介绍: 房子在小区里的位置比较好,不临马路,不临小区门,非常安静。房子面宽较宽,居住舒适度高,采光度好。因为是四层设计,所以功能区间划分得很好,无论是与老人住,还是经常有访客来访,都能很好的做到互不打扰,居住、、娱乐都预留有空间
-
服务介绍问经纪人
本人从事房产多年,对重庆主城各个小区价格走势熟悉,可根据客户的需求和预算,迅速匹配合适的房源,让客户看房不再盲目,节约大量的时间和精力。给客户的价格,并且买房后会全程陪同办理各种买房手续,让客户省心
-
税费分析房贷计算
契税详情如下 首套房: 1、产权面积<140m,总房价×1% 2、产权面积≥140m,总房价×1.5% 二套购房: 1、产权面积<140m,总房价×1% 2、产权面积≥140m,总房价×2% 三套及以上: 1、总房价×3% 关于本房的税费信息情况,请电话联系我,我将详细的为您讲解!
-
户型解读问经纪人
1、小区物业管理严格,服务到家让你生活放心。 2、小区人文素质高,是您居住的佳所。 3、小区居住安静舒适,让您居住并享受高品质的生活。
周边配套
交通综合评分
查看全部超过重庆52.4%的小区
-
地铁公交
9.0
-
驾车出行
10.0
猜你喜欢
同小区其它房源
-
10296元/㎡
本月挂牌均价
-
9.19%
环比上月
买房加房产交流群,省钱不踩雷
3000+人正在热聊
- 免费咨询
- 专业服务
- 区域解读
- 户型分析


