新希望D10天际3室2厅南
-
213万
总价
-
3室2厅
户型
-
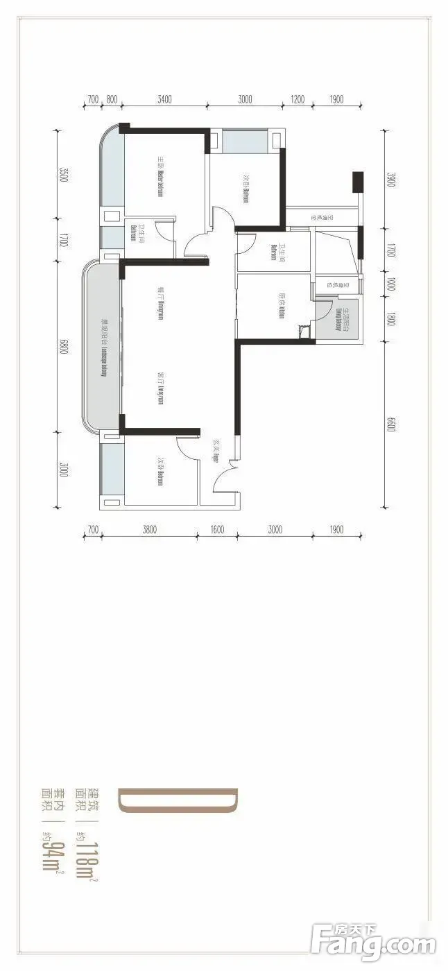
118㎡
建筑面积
买房加房产交流群,省钱不踩雷
3000+人正在热聊
-
单价
18051元/平米
- 挂牌价格解析
-
楼层
低楼层/32层
- 咨询楼层
-
套内
暂无数据
- 咨询套内使用面积
-
楼型
板塔结合
-
朝向
南
-
装修
其他
-
供暖
暂无数据
-
发布
2025-11-09
-
地铁
距2号线杨家坪站约657米
-
咨询总首付
首付约64.9万
首付税费及佣金情况 -
深度测评
小区新希望·D10天际(九龙坡-杨家坪)
-
更多
楼户比、楼层高度、交易历史、抵押信息
房源描述(2)
-
核心卖点问经纪人
在售户型 建筑面积:118平米—172平米 套内面积:94平米—140平米 户型:三房,四房 总价:220万—440万 总高:31层,2梯4户,3梯4户
-
业主心态问经纪人
一手新房,直接与开发商签订合同,无任何其他中介服务费用
-
小区配套问经纪人
交通:轻轨二号线,轻轨18号线商业:龙湖西城天街,华润万象城,新世纪百货,大洋百货,富安百货教.育:杨家坪中XUE,九龙坡小XUE医疗:九龙坡人民医院,西郊医院,重庆医科人民医院(三甲医院)
-
服务介绍问经纪人
本人从事房地产多年,公司有大量好房源,欢迎进入我的店铺查看,欢迎随时电话咨询,相信我的专业,为您置业安家保驾护航。
-
税费分析房贷计算
契税:建筑面积90平米以下:首套房:1%,二套房:1%,三套及以上:3%建筑面积90平米以上:首套房:1.5%,二套房:2%,三套及以上:3%大修基金:建筑面积*80元
周边配套
交通综合评分
查看全部超过重庆0.0%的小区
-
地铁公交
10.0
-
驾车出行
10.0
本月均价 17585元/m²
环比上月 下跌 2.12%
同比去年 下跌 13.3%
猜你喜欢
同小区其它房源
户型齐全,主打全明格局,户型方正四居
新希望·D10天际户型主要有138平-172平的全明格局,户型方正的四居 、118平-118平的全明格局,户型方正的三居 、252平-252平的南北通透,全明格局,户型方正的五居 。
*获取完整户型报告,同时会有免费语音讲解服务
-
8820元/㎡
本月挂牌均价
-
0.08%
环比上月
买房加房产交流群,省钱不踩雷
3000+人正在热聊
- 免费咨询
- 专业服务
- 区域解读
- 户型分析


