BS纸彪,低楼层有花园,采光充足,正规2居室,便宜
-
107万
总价
-
2室1厅
户型
-
48.21㎡
建筑面积
买房加房产交流群,省钱不踩雷
3000+人正在热聊
-
单价
22195元/平米
- 挂牌价格解析
-
楼层
低楼层/10层
- 咨询楼层
-
套内
暂无数据
- 咨询套内使用面积
-
楼型
板楼
-
朝向
东南
-
装修
精装
-
供暖
暂无数据
-
发布
2025-09-24
-
地铁
距1号线七星岗站约377米
-
咨询总首付
首付约27.9万
首付税费及佣金情况 -
深度测评
小区双钢路小区(渝中-一号桥)
-
更多
楼户比、楼层高度、交易历史、抵押信息
房源描述(2)
-
核心卖点问经纪人
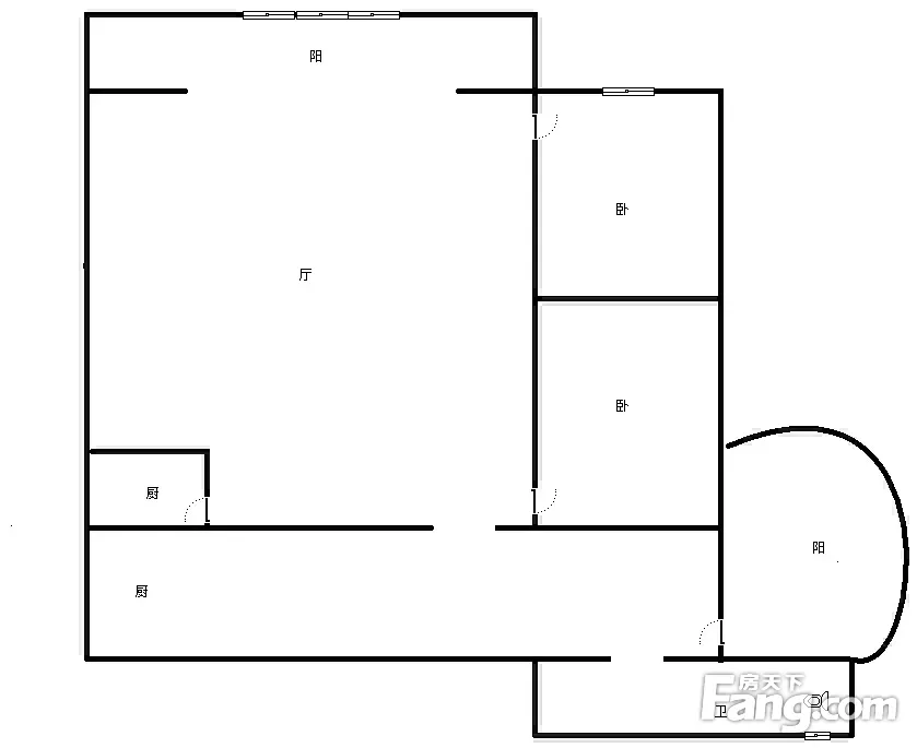
该房源位于渝中区双钢路小区,是一套南北通透的两室一厅住宅,建筑面积48.21平米,总价108万,单价22402元/平米。房屋位于9层建筑的底层,满二产权,中装修标准,整体维护状况良好。 这套两居室户型方正,功能分区明确,包含两个卧室、一个客厅、一个卫生间、一个厨房及一个阳台。南北朝向的设计保证了室内采光通风效果,低楼层位置方便日常出入。小区地理位置优越,周边生活配套成熟,是渝中区核心地段的优质住宅选择。
-
核心卖点问经纪人
荐理由:满两年、带指B、户型方正、视野开阔、性价比高 1:房屋产权清晰,放心交易,可随时面签合同。 2:房屋户型方正,紧凑,无浪费空间。这个户型很少人拿出来卖,房源真实,价格很实惠,是*房源。 3:房屋不当西晒,采光充足,没有黑屋。开间宽敞,通风效果非常好,可以给你一个干爽、不潮湿的住家环境。
-
业主心态问经纪人
业主诚心出售此房,欢迎看房。 如需了解其他信息请与我联系。
-
小区配套问经纪人
位置:小区地理位置佳,绿化率高,居民素质高 配套:有健身器材,小型篮球场,可供小区居民使用 车位:停车位充足,建有地上停车场和地下车库 保安:小区内24保安巡逻
-
服务介绍问经纪人
本人从事房地产多年,公司有大量好房源,欢迎进入我的店铺查看,欢迎随时电话咨询,相信我的专业,为您置业安家保驾护航。
周边配套
交通综合评分
查看全部超过重庆33.0%的小区
-
地铁公交
10.0
-
驾车出行
10.0
本月均价 18510元/m²
环比上月 下跌 0.62%
同比去年 下跌 3.01%
猜你喜欢
同小区其它房源
-
14913元/㎡
本月挂牌均价
-
0.04%
环比上月
买房加房产交流群,省钱不踩雷
3000+人正在热聊
- 免费咨询
- 专业服务
- 区域解读
- 户型分析

