双钢路1号 1室1厅 南 南 南
-
96.8万
总价
-
1室1厅
户型
-
48.91㎡
建筑面积
买房加房产交流群,省钱不踩雷
3000+人正在热聊
-
单价
19792元/平米
- 挂牌价格解析
-
楼层
中楼层/7层
- 咨询楼层
-
套内
43.2㎡
- 咨询套内使用面积
-
楼型
板楼
-
朝向
南
-
装修
其他
-
供暖
暂无数据
-
发布
2025-11-28
-
地铁
距1号线七星岗站约377米
-
咨询总首付
首付约28.7万
首付税费及佣金情况 -
深度测评
小区双钢路小区(渝中-一号桥)
-
更多
楼户比、楼层高度、交易历史、抵押信息
房源描述(5)
-
核心卖点问经纪人
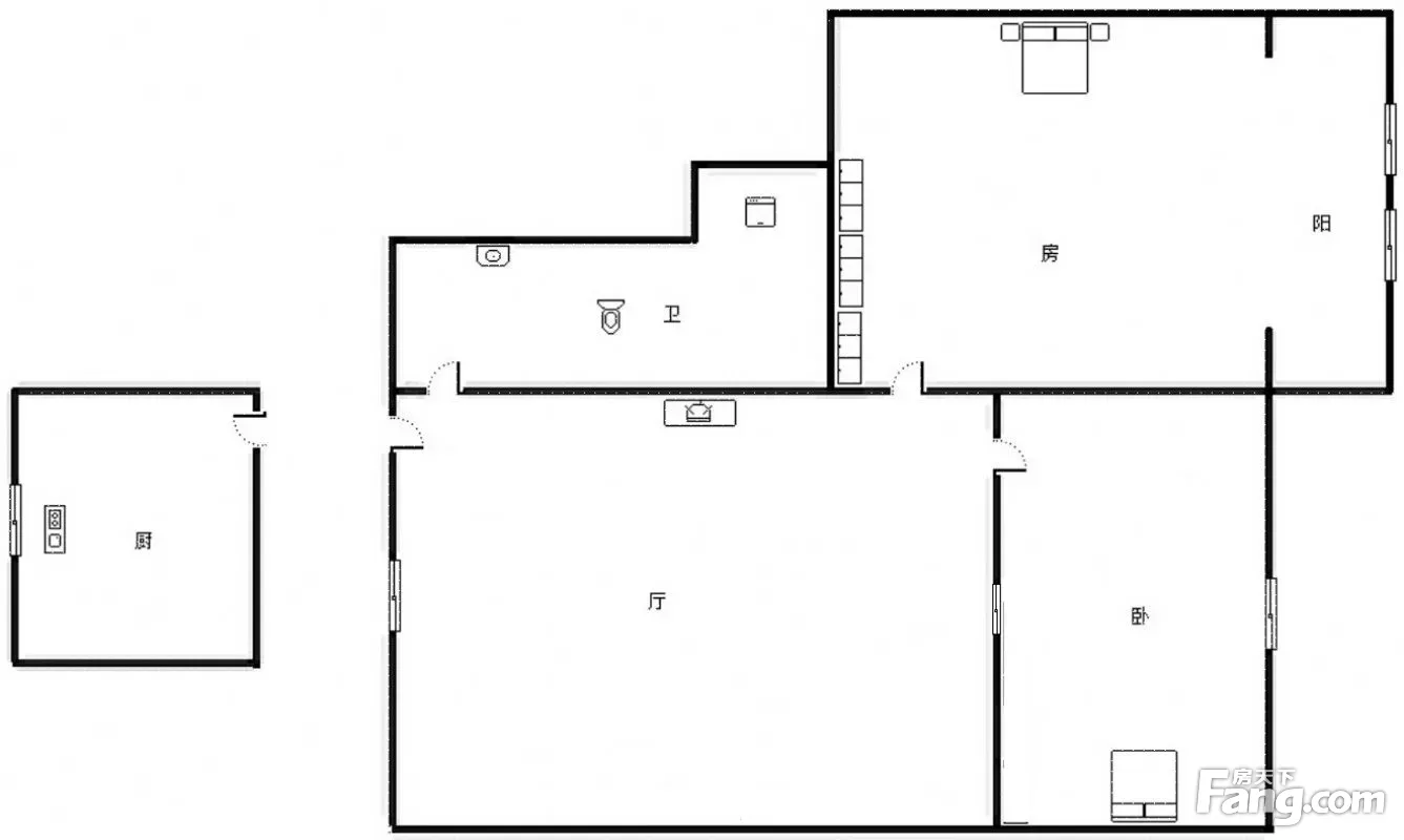
该房源位于渝中区双钢路小区,是小學的划片区域,满足三对口政策可就,是1990年建成的住宅项目,总高13层,本套房源位于中层位置。房屋建筑面积48.72平方米,采用1室1厅1卫1厨1阳台的实用格局,南向朝向保证了良好的采光条件。目前房本已满两年,交易税费较低。 这套一居室采用中装修标准,整体维护状况良好,可直接入住。单价19499元/平,总价95万,在渝中核心区域具有较高的性价比。小区地理位置优越,周边生活配套成熟,交通便利,适合单身人士或小家庭居住。
-
小区配套问经纪人
交通配套:轨道10号线,二号线均在5内,公交车站遍布,交通便利,出行方便。 配套:,高中,初中,均在附近,兴趣,爱好,托管机构多,氛围浓厚。 生活配套:批发菜市场,杭商华联超市(在建),惠利优选超市在10内;工行,建行,农行,中国银行均在此区域有服务点;还有电影院,公园等休闲娱乐场所。
-
核心卖点问经纪人
该房源位于渝中区核心地段双钢路小区,是小學的划片区域,满足三对口政策可就,是1990年建成的成熟住宅社区。这套48.72平米的南向两房一厅户型,位于13层建筑的中层位置,采光通风俱佳。房屋保持中装修状态,房本已满两年,交易税费优惠。 双钢路小区地理位置优越,周边生活配套完善。这套两居室户型布局合理,带有独立厨房和阳台,实用性强。总价95万,单价19499元/平,在渝中核心区具有较高性价比。南朝向保证室内光线充足,中层位置既避免了低层的潮湿又无需担心高层不便,是自住置业的理想选择。
-
小区配套问经纪人
交通配套:轨道10号线,二号线均在5内,公交车站遍布,交通便利,出行方便。 配套:,高中,初中,均在附近,兴趣,爱好,托管机构多,氛围浓厚。 生活配套:批发菜市场,杭商华联超市(在建),惠利优选超市在10内;工行,建行,农行,中国银行均在此区域有服务点;还有电影院,公园等休闲娱乐场所。
-
核心卖点问经纪人
1 看房直接打电话或加电话。 2 本店所有房源图片均为实拍图,放心约看。 2 该房位于渝中区大礼堂大溪沟附近,位置好。 3 此房户型方正 南北通透 采光好 。装修设备齐全。 4 周边生活配套齐全, 出行方便,绿化好。宜居家。 欢迎进店查看更多房源信息。
-
业主心态问经纪人
业主置换房屋,诚信出售,证在手上,价格美丽,放心购买。
-
小区配套问经纪人
位置:大溪沟、大礼堂 菜市:学田湾菜市大溪沟菜市 超市:重百沃尔玛 永辉超市 银行:建设 重庆 工商 邮局 农业银行.... 医院:上清寺口腔医院重医附四院八院 餐饮:鹅肠王老火锅乡村基肯德基等等...... 电影院:保利国际影城
-
服务介绍问经纪人
瑞明房产郑重承诺:不以虚假房源期骗买家,不以任何不正当行为骗取客户服务费用,我将全心全意为找房用户找到称心如意的房子。在这里,您买到的不只是房子,而是幸福温暖的家......
-
税费分析房贷计算
产权清晰 税费低 交易安全透明 放心找我哟 欢迎随时联系。
-
户型解读问经纪人
此房户型方正 南北通透 采光好 。装修设备齐全
-
核心卖点问经纪人
双钢路 巴属小學纸彪 平上3楼 装修清爽 拎包入住
-
核心卖点问经纪人
1:B蜀指彪房,近 2:户型方正,采光好 3:视野开阔,无遮挡 4:配套成熟,近地铁,医院,商场
周边配套
交通综合评分
查看全部超过重庆33.0%的小区
-
地铁公交
10.0
-
驾车出行
10.0
本月均价 18510元/m²
环比上月 下跌 0.62%
同比去年 下跌 3.01%
猜你喜欢
同小区其它房源
-
14913元/㎡
本月挂牌均价
-
0.04%
环比上月
买房加房产交流群,省钱不踩雷
3000+人正在热聊
- 免费咨询
- 专业服务
- 区域解读
- 户型分析



