盘龙重庆中交城三房140万
-
140万
总价
-
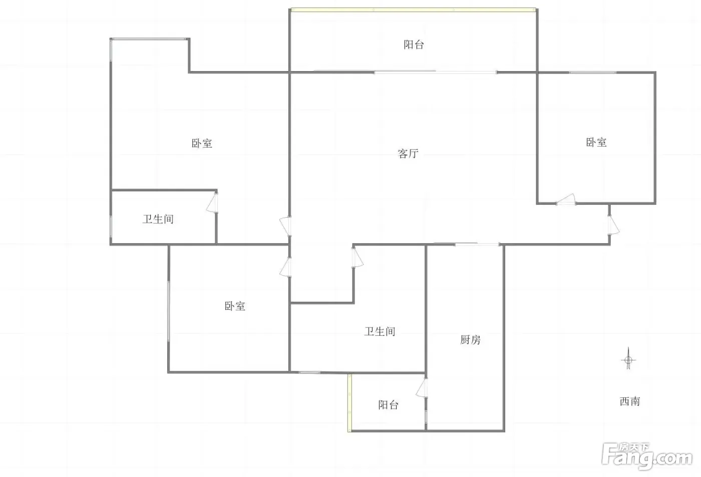
3室2厅2卫
户型
-
99.6㎡
建筑面积
买房加房产交流群,省钱不踩雷
3000+人正在热聊
加入群聊
-
单价
14056元/平米
- 挂牌价格解析
-
楼层
高楼层/31层
- 咨询楼层
-
套内
76㎡
- 咨询套内使用面积
-
朝向
东
-
装修
毛坯
-
年代
2023
-
发布
1900-01-01
-
地铁
距2号线马王场站约1085米
-
咨询总首付
首付约42.2万
首付税费及佣金情况 -
深度测评
小区重庆·中交城(九龙坡-巴国城)
-
更多
楼户比、楼层高度、交易历史、抵押信息
周边配套
地址:盘金路金茂悦西侧约50米
交通综合评分
查看全部7.0
“较好”
超过重庆0.0%的小区
-
地铁公交
10.0
-
驾车出行
10.0
本月均价 13559元/m²
环比上月 上涨 1.23%
同比去年 下跌 15.96%
猜你喜欢
同小区其它房源
户型齐全,主打全明格局,户型方正三居
重庆·中交城户型主要有89平-99平的全明格局,户型方正的三居 、127平-127平的全明格局,户型方正的四居 。
*获取完整户型报告,同时会有免费语音讲解服务
-
10264元/㎡
本月挂牌均价
-
0.83%
环比上月
买房加房产交流群,省钱不踩雷
3000+人正在热聊
加入群聊
免责声明:房源信息由网站用户提供,其真实性、合法性由信息提供者负责,最终以政府部门登记备案为准。本网站不声明或保证内容之正确性和可靠性,购买该房屋时,请谨慎核查。入学情况仅凭历史经验总结,在此不承诺升学事宜。请您在签订合同之前,切勿支付任何形式的费用,以免上当受骗。



