交通出行方便,户型采光很好,看房方便
-
140万
总价
-
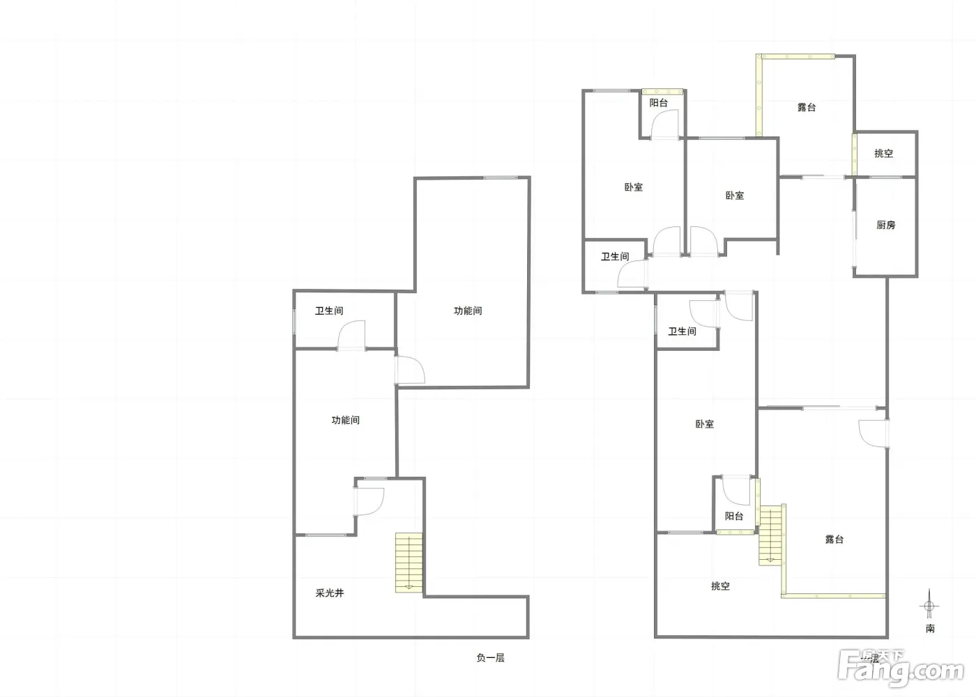
5室2厅2卫
户型
-
208㎡
建筑面积
买房加房产交流群,省钱不踩雷
3000+人正在热聊
-
单价
6731元/平米
- 挂牌价格解析
-
楼层
低楼层/6层
- 咨询楼层
-
套内
暂无数据
- 咨询套内使用面积
-
楼型
板楼
-
朝向
南
-
装修
毛坯
-
供暖
暂无数据
-
发布
2020-10-10
-
地铁
距9号线宝圣湖站约546米
-
咨询总首付
首付约46.6万
首付税费及佣金情况 -
深度测评
小区旭辉朗香郡(两江新区-回兴)
-
更多
楼户比、楼层高度、交易历史、抵押信息
房源描述(1)
-
核心卖点问经纪人
欢迎来到的店铺! 业主心态: 业主诚心出售 由于买了其他房产所以这套急售,再卖一星期如果卖不了就走商贷这房子就不是这个价了。这种户型一直是不错的户型错过这套再找这个价格的就在也找不到了!看房方便,提前预约即可!!! 真实优质有效 本房价为业主目前真实底价,绝无少报多报等虚假信息,请大家共同监督 本人将对来电电话号码提供保密服务,以避免过多陌生电话给您带来的不必要麻烦. 急推荐
-
业主心态问经纪人
房东置换,诚心出售,价格可以再谈,欢迎看房,随时恭候。
-
小区配套问经纪人
位置:小区地理位置佳,绿化率高,居民素质高 配套:有健身器材,小型篮球场,可供小区居民使用 车位:停车位充足,建有地上停车场和地下车库 保安:小区内24保安巡逻
-
服务介绍问经纪人
本人从事房地产多年,公司有大量好房源,欢迎进入我的店铺查看,欢迎随时电话咨询,相信我的专业,为您置业安家保驾护航。
-
税费分析房贷计算
物业费2元到3元一平方。 购买新房主要税费: 契税:90平以内:1% ;90-124 平收1.5%;124平以上收2%(交房后地税收取) 注:以上收费仅供参考
周边配套
交通综合评分
查看全部超过重庆16.9%的小区
-
地铁公交
10.0
-
驾车出行
10.0
本月均价 10015元/m²
环比上月 上涨 0.21%
同比去年 下跌 7.37%
猜你喜欢
同小区其它房源
户型齐全,主打明卫,双阳台三居
旭辉朗香郡户型主要有79平-242平的明卫,双阳台的三居 、115平-237平的户型方正,明卫,双阳台,主卧朝南的四居 。
*获取完整户型报告,同时会有免费语音讲解服务
-
10549元/㎡
本月挂牌均价
-
0.69%
环比上月
买房加房产交流群,省钱不踩雷
3000+人正在热聊
- 免费咨询
- 专业服务
- 区域解读
- 户型分析

